
De jaren 1926 -1942
J.P.G. Kok
Kok / Alvana tot 1928
Eigenaren: N. V. "Centrale Bank" gevestigd te Veendam 1926 - 1928. N. V. Bouw- en Handelmaatschappij "Alvana" gevestigd te Amsterdam 1928 - 1933.
N.V. "de Nederlandsche Spaarbank" gevestigd te Groningen, kantoorhoudend te Schiedam 1933 - 1942. Johannes Pieter Hendrik Woltman 1942.
1925
26 januari 1925. 'Een inkijkje in het werk van J.P. Kok' zou een goede titel zijn voor de volgende akten. Het begon met de aankoop van twee percelen nog onbebouwde grond in Schoten. Alle akten, acht in totaal, werden 26 januari 1925 opgemaakt door notaris Johannes Wildschut op de Nieuwe Gracht 74 te Haarlem.
Kadastrale kaart Schoten 1925
Hierboven blauw omkaderd het eerste perceel, sectie B nummer 6507, groot drie en twintig aren zes en zestig centiaren. Het ging om de oostzijde van de Rijksstraatweg hoek Spaarnhovenstraat. Het stukje straat, in het verlengde van de Spaarnhovenstraat naar de Rijksstraatweg, moest nog worden aangelegd. Zoals te doen gebruikelijk stond de aannemer de grond voor de straat kosteloos af aan de gemeente met betaling van de kosten voor de straataanleg, in dit geval F. 7035. Het tweede perceel was gelegen ten oosten van de Rijksstraatweg nabij de Padangstraat en Indische Straat, sectie B nummer 1219, groot een hectare negentien are zeventig centiaren, en eigenlijk nog weiland. Het lag in het witte stuk rechts op de kaart.
De twee percelen werden voor F. 40.600 gekocht van de heer W. van Schie, zonder beroep, wonende te Schoten, door de heer J. P. G.Kok , bouwkundige wonende te Heemstede en J. F. Haye, administrateur, wonende te Schoten, handelende in hun hoedanigheid van enige directeuren van de N.V. Bouw-en Handelmaatschappy Atilla.
In de de tweede akte werd er door de N.V. Bouw-en Handelmaatschappy Atilla een hypotheek afgesloten met de heer J.W.P. Kardoes, directeur van de N.V. 'Noord- Hollandsche Hypotheekbank''. Het ging om F. 50000 voor het tweede perceel.
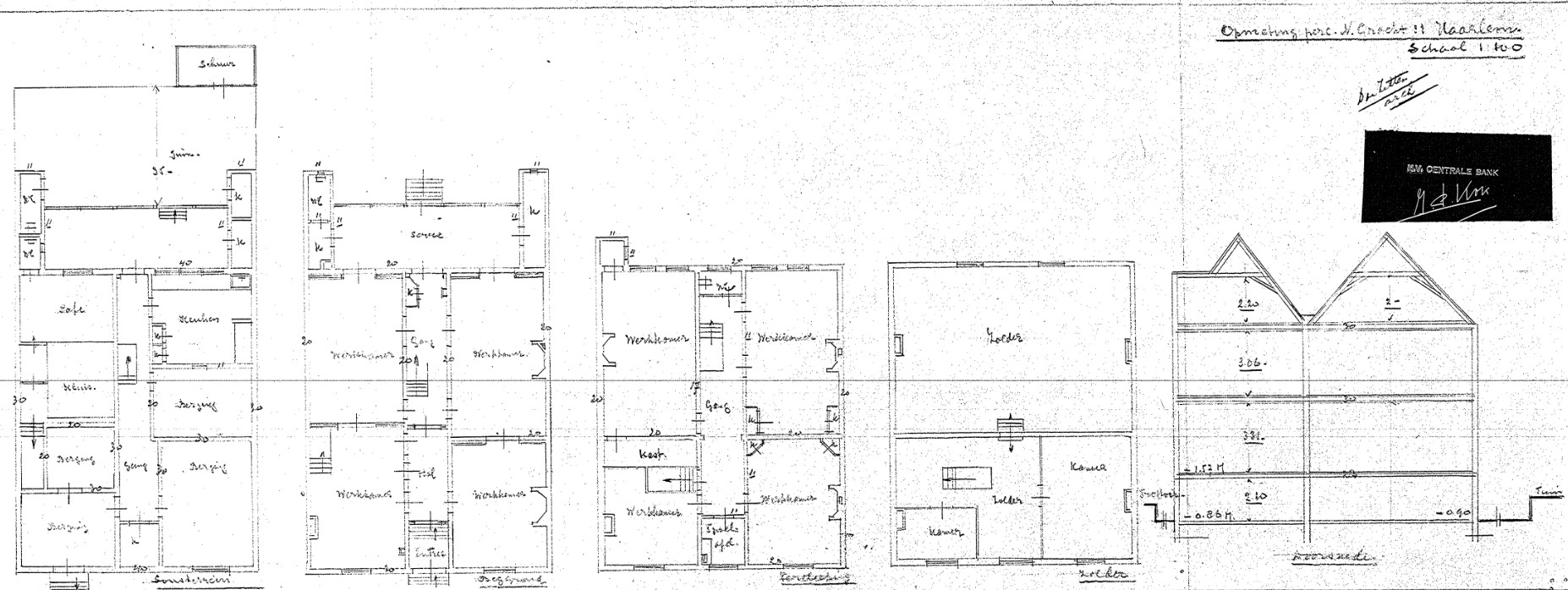
Voor het eerste perceel diende Kok een aanvraag in, ook op 26 januari 1925, bij de gemeente Schoten, voor het bouwen van 10 woningen en 2 winkelwoningen met een garage.
Bouwtekening 1925
Google Earth.
2025
Kok verdeelde nu het eerste perceel in drie gelijke stukken:
- Het eerste deel werd door N.V. Bouw-en Handelmaatschappy Atilla verkocht aan J. G. van den Bel, bouwkundige, wonende te Overveen. Het stukje heette officieel: 'Een perceel bouwterrein gelegen te Schoten aan den Rijksstraatweg (oostzijde) uitmakende een ter plaatse afgescheiden gedeelte ter grootte van ongeveer zes honderd centiaren van het perceel sectie B nummer 6507, geheel groot drie en twintig aren zes en zestig centiaren, welk perceel bestemd is voor den bouw van vier woningen.' Het kostte F.14000.
Van den Bel sloot een hypotheek af over zijn net gekochte stukje grond met de heer Jan van Dorssen, wonende te Utrecht,voor zich en als mondeling gemachtigde van de heer Christiaan van Dorssen, wonende te Utrecht, beiden directeuren der N.V. Stichtsche Bankvereeniging, gevestigd te Utrecht. De hypotheek was F. 30.000.
- Het tweede deel werd door N.V. Bouw-en Handelmaatschappy Atilla verkocht aan H. Lamberts, bouwkundige wonende te Schoten. Het was een perceel bouwterrein op de hoek van den Ryksstraatweg en de geprojecteerde Spaarnhovenstraat (noordzijde) uitmakende een ter plaatse afgescheiden gedeelte ter grootte van ongeveer vier honderd vijftig centiaren van het perceel sectie B nummer 6507, met daarop te bouwen vier woonhuizen en een garage. Ook hier werd F. 14000 betaald.
Daarna sloot Lamberts een hypotheek af met de N.V. Stichtsche Bankvereeniging. De hypotheek was nu hoger: F. 31.500.
- Het derde deel werd door N.V. Bouw-en Handelmaatschappy Atilla verkocht aan de heer J. C. Suerink, bouwkundige wonende te Schoten, Raadhuisplein 16, handelende in hoedanigheid van enig directeur van de N.V. Bouw- en Handelmaatschappij 'Pericles'. Het ging om een perceel bouwterrein op den hoek van de Rijksstraatweg en de geprojecteerde Spaarnhovenstraat (zuidzijde). uitmakende een ter plaatse afgescheiden gedeelte ter grootte van ongeveer vier honderd vijftig centiaren, met daarop te bouwen vier woonhuizen en een garage.
Bij deze akte was een kopie toegevoegd van notulen van een vergadering op 20 januari 1925 te Haarlem gehouden, waarbij de heer Adam van Tooren, makelaar, wonende te Amsterdam, enig directeur van N.V. Bouw- en Handelmaatschappij 'Pericles' ontslag wenste. Nadat hij zijn ontslagaanvraag nader had gemotiveerd werd hem eervol ontslag verleend. Met algemene stemmen werd daarna als enig directeur der vennootschap benoemd de heer J. C. Suerink. Mei 1925 werd Lamberts, naast Suerink, benoemd tot mede-directeur.
De laatste akte was het afsluiten van een hypotheek door de N.V. Bouw- en Handelmaatschappij 'Pericles' met de N.V. Stichtsche Bankvereeniging voor F. 31.500.
De keuze om met Jan Carel Suerink in zee te gaan was vreemd. Deze Amsterdamse aannemer en actief lid van de vakbond voor timmerlieden had in mei 1923 een grote opdracht gekregen van de Arbeiderswoningbouw Vereeniging 'Utrecht' voor het bouwen van 100 arbeidershuizen en twee winkelhuizen voor F. 279. 834. Hij was de laagste inschrijver geweest, wat de gemeenteraad van Utrecht later zwaar aangerekend werd dat ze daarom voor hem hadden gekozen. De aannemer Suerink bleek namelijk 'niet solide voor zijn geld'. Zo feestelijk als de eerste steenlegging was, zo groot was de deceptie toen Suerink al op 28 november 1923 failliet werd verklaard. In eerste instantie namen de borgen van Suerink het werk over maar ook zij stopten al snel. Er werden drie adressen gestuurd naar B. en W. om uitbetaling. Uiteindelijk werd de bouw hervat en was het complex in maart 1925 zo goed als af. Wel hadden B. en W. het krediet van februari 1923 (F. 288.817) moeten verhogen tot F. 348.500. Het werd een hele kwestie. Vooral omdat de borgen ook niet voldoende kapitaalkrachtig waren gebleken en om de gegronde vrees dat de huur van de arbeiderswoningen te hoog zou worden. Suerink ondertussen stuurde nu een rekest aan de gemeenteraad met verzoek tot teruggaaf van zijn gereedschappen.
Opening.
Utrechtsche
courant
14 05 1923
Adressen.
Het centrum
25 03 1924
Rekest.
Utrechtsche
courant
06 03 1925
Afloop.
Utrechtsche
courant
30 03 1925
'gebrek aan geld van aannemer, langzaam werken en zijn geldverspilling'.
Algemeen
Handelsblad
20 02 1927
De bouwaanvraag van Kok voor het bouwen van 10 woningen en 2 winkelwoningen met een garage werd op 10 februari 1925 goedgekeurd. Hoewel er twee architecten waren, lijkt het ontwerp van Lamberts geweest te zijn. In het bouwdossier werden geen speciale dingen vermeld, behalve dat Kok op 27 mei 1925 ernstig werd berispt omdat hij de gemeente nog niet betaald had voor het stuk Spaarnhovenstraat wat moest worden aangelegd. En dat terwijl de gemeente de oorspronkelijke kosten van F. 7035.- al had verlaagd met F.2000.-.
Kok kocht eind maart op een veiling bouwterreinen, een villa en zelfs een tennisbaan in Heemstede.
Nieuwe Haarlemsche
Courant 31 03 1925
25 april 1925 werd in Veendam een bijeenkomst gehouden van aandeelhouders van de Veendammer Hypotheekbank. De commissarissen, waaronder Meiborg, die tevens voorzitter was van de vergadering, hadden daartoe opgeroepen. Het ging om het opkopen van Woltman van aandelen van zowel de Veendammer- als de Noord- Ned. Hypotheekbank om zo een meerderheid te krijgen en de bank te kunnen splitsen. Dit in samenwerking met de heer Kok 'en zijn consortium' dat volgens Woltman 'beschikt over tonnen goud en de deelnemers zijn geen sjappies'. Kok was ook aanwezig en wilde het woord voeren maar werd door voorzitter Meiborg gekwalificeerd als 'handlanger' en mocht niet spreken.
De Noord-Ooster
28 04 1925
Vervolg
De Noord-Ooster
28 04 1925
Na deze emotionele vergadering vertrok Woltman met zijn gezin naar Hilversum, naar de zeer luxueuse villa 'Hilverhouse' op de 's Gravelandscheweg 76b. Het kantoor verhuisde mee naar de 's Gravelandscheweg 75. Zie Woltman:
In april 1925 kocht Kok het pand op de Keizersgracht 407 te Amsterdam. De Noord-Hollandsche Hypotheekbank werd hier gevestigd (Ook het agentschap van de Stichtsche Bank verhuisde mee van de Keizersgracht 192 naar 407!).
De Telegraaf
29 04 1925
7 oktober 1925 werden de N.V. Bouw- en HandelsMij. 'Pericles' en H. Lamberts in staat van faillissement verklaard. Door de deurwaarder werden o.a diverse houtwaren verkocht. De spullen waren te zien nabij nr. 86 op de Rijksstraatweg (Cornelis Kok woonde op nr. 86 M.)
Nieuwe Haarlemsche
Courant 07 10 1925
De schulden.
Nieuwe Haarlemsche
Courant 22 01 1926
Cornelis Kok had huurhuizen in de aanbieding, in nauwe samenwerking met de N.V. Beleggings Mij. 'Noord-Holland' en Woningbureau 'Hako'.
Het nieuwe adres van de Beleggingsmij. 'Noord-Holland' was nu de Zijlstraat in het gebouw van de Nationale Bank (Hoek Zijlstraat / Gedempte Oude Gracht) te Haarlem. In een hypotheekakte van 16 april 1925 bleken naast directeur Kok de vier commissarissen van de 'Noord-Holland' te zijn: Mr. F.J. Tjabbes, J. Woltman jr. (beide bankdirecteur, Groningen), J.P. Kardoes (bankdirecteur, Hilversum) en P.B. ter Laag (kandidaat-notaris, Heemstede).
Haarlem's Dagblad
01 05 1925
30 mei 1925 kreeg Kok toestemming voor het bouwen van schuurtjes achter 225 percelen aan de Spaarnhovenstraat en omgeving in Schoten.
2 juni 1925 schreef H. Lamberts zich op eigen naam in voor een aanbesteding van het bouwen van een burgerwoonhuis in Velsen. Hij had het laagste bod, maar de gunning werd aangehouden.
Kok adverteerde nu met het chic adres op de Keizersgracht 407 in Amsterdam. De laatste advertentie, uit Heemstede, lijkt over zijn eigen huis te gaan.
Algemeen Handelsblad
06 07 1925
Haarlem's Dagblad
08 08 1925
Algemeen Handelsblad
08 08 1925
11 april 1925 vroeg Kok vergunning aan voor het bouwen van 100 arbeiderswoningen, waaronder 10 winkelwoningen. Dit ging om sectie B nummer 1219, het stuk 'weiland' wat Kok op 26 januari 1925 had gekocht. Het zou, nu er een geprojecteerd stratenplan was, gaan om huizen aan de Rembang-, Djambi-, Besoeki -, Kedoe- en Bandoengstraat (project 'Rembangstraat'). Het project was van begin af aan een bron van problemen. Het begon er al mee dat de gemeente nogal traag was met het vaststellen van de openbare ruimte. En dat terwijl Kok toch al gedetailleerde bouwplannen had ingeleverd, helemaal volgens nieuw ingevoerde richtlijnen. Hoewel een ambtenaar op 25 mei 1925 schreef: 'Ik meen er nog even uw aandacht op te moeten vestigen, dat deze bouw met alles niet al voldoet aan de oude verordening, doch ook niet aan de nieuwe bouwverordening. Dat B. en W. ontheffing verleenen is voor zoover ik weet een novum. Dat is toch bewust geschied?' Wethouder Klein stond in dit geval achter Kok. 4 augustus 1925 werd de bouwaanvraag goedgekeurd. Behalve wat proefboringen gebeurde er tot juni 1926 niets.
30 september 1925 kocht Kok F. 54000 een flink stuk grond in Aerdenhout, gemeente Bloemendaal. Het ging om de Vogelenzangseweg 12-14.
Kok kocht het van de regent van 'Het Hofje van Nicolaes van Beresteyn' en van 'Het Hofje van Mr. Pieter Janszoon Codde, genaamd Spoorwater'. De regent had het perceel het jaar daarvoor gekocht op een veiling. De gemeente Bloemendaal wilde na de koop graag een ruil met Kok van een stuk grond tegen een strook aan de Vogelenzangseweg voor verbreding van die weg. Het gebeurde allemaal in goede harmonie.
Nieuwe Haarlemsche
Courant 09 10 1925
Hij was van plan om op het enorme perceel een villa te bouwen. De villa kreeg de naam 'Arenzano'. Architect was J.G. van den Bel.
De bouwvergunning was al aangevraagd op 18 augustus 1925 en verleend op 21 augustus. Het zou een villa worden met alles erop en eraan: een toegangsweg, chauffeurshuis met twee garages, weiland, moes- en siertuin, paardenstallen en kippenhokken.
Ontwerp voor de villa.
Met een 'heerenkamer' en op
de eerste verdieping twee
kinderkamers met daartussen
kamer voor de kinderjuf .
1925
Villa Arenzano
2015.

Bijbehorende
chauffeurswoning.
M. v.d. Neut 2023.
Ontwerp voor
de oprijweg.
1925
Nieuwe Haarlemsche
Courant 24 10 1925
12 oktober 1925. Wat was er gebeurt? Om de een of andere reden hadden Lamberts en de N.V. Bouw- en HandelsMij. 'Pericles', waarvan Lamberts sinds mei 1925 naast J.C. Suerink mededirecteur was, niet kunnen voldoen aan hun verplichtingen aan de Stichtsche Bank. Hiervan had de Schtische Bank aanzegging gedaan bij de borgen van perceel 1, voor Lamberts waren dat Kok en de vader van Lamberts, Mannus Lamberts, en de borgen voor perceel 2, de N.V. Bouw- en HandelsMij. 'Pericles', dit waren Kok en Bastiaan Smallegange, aannemer van grondwerken.
De Stichtse Bank had besloten alle in aanbouw zijnde huizen op de twee percelen in het openbaar te veilen. De twee percelen werden allebei verkocht
aan J.P.G. Kok, als mondeling lasthebber van de N.V. Bouw- en exploitatiemaatschappij 'Lutine' te Amsterdam. Perceel 1 voor F. 17000,- en perceel 2 voor F. 22100. De oprichtingsakte van de 'Lutine' was op 6 oktober 1925 afgedrukt in de Nederlandsche staatscourant. Directeur J.G. van den Bel.
Voorlopige akte.
12 10 1925
Haarlem's Dagblad
13 10 1925
Schrijnend was een briefje van 6 maart 1926 waarin de bouwopzichter namens de heer van den Bel de gemeente verzocht om een afschrift van de bouwvergunning, 'betreffende den bouw van 10 heerenhuizen, 2 winkelhuizen m/garages, respectievelijk staande a/d Rijksstraatweg en Spaarnhovenstraat. Dit werk behoorde vroeger toe a/d Heer Lamberts, maar is door dien heer niet voltooid, door zijn failliet gaan zijn de goedgekeurde teekeningen e.a. zekerlijk zoek geraakt. De Heer J.P. v.d. Bel zal dit werk voltooien.'
13 januari 1926, na afwikkeling van het faillissement, vertrok Lamberts met zijn vrouw naar Rotterdam. Hij ging later werken bij gemeentewerken Leiden. Zijn ouders bleven wonen op de Floresstraat 11, in juni 1926 keerden ze terug naar Apeldoorn. Vader ging daar weer werken als aannemer van metselwerken.
Suerink bleek bij het huwelijk van zijn dochter in augustus 1930 in Zandvoort te wonen en kamerverhuurder te zijn.
13 november 1925 verkocht Kok de grond in Bloemendaal, waarop villa Arenzano gebouwd zou worden, voor F. 135.000 aan de heer Albertus Johannes Werker, enig directeur van N.V. Bouw- en exploitatie maatschappij 'Bandoeng' te Amsterdam. Op dezelfde dag werd met Kok, als mondeling lasthebber van de heren J. Woltman en J.P.H. Woltman van de N.V. Veendammer Hypotheekbank te Hilversum, een hypotheek afgesloten van
F. 270.000. Dan nog iets bijzonders in de verkoopakte over de heer Werker: 'De directeur is benoemd in een vergadering op heden gehouden blijkens proces-verbaal vergadering verleden door notaris J.A. Houtzager te Amsterdam'. Hij was dus pas sinds deze dag directeur van N.V. Bouw- en exploitatiebureau Maatschappij 'Bandoeng' ...
Vanaf oktober 1925 verschenen er eigenaardige advertenties voor te huur staande huizen en bovenhuizen on Amsterdam. Eigenaardig, omdat de woningen werden behangen en geschilderd naar keuze van de huurder.
Algemeen Handelsblad
17 11 1925
Ook Cornelis Kok verhuurde nog steeds huizen in Schoten. Nu met huurverlaging.
Haarlem's Dagblad
23 10 1925
19 december 1925 werd Kok benoemd tot directeur van de Centrale Bank te Veendam. De zetel zou verplaatst worden naar Aerdenhout, gemeente Bloemendaal (villa Arenzano), maar werd in mei 1926 voorlopig verplaatst naar de Zijlstraat 45-49 te Haarlem (In het gebouw van de Nationale Bankvereeniging). Hier had Kok al eerder de N.V. Beleggings Mij. 'Noord-Holland' ondergebracht. En ook de Nederlandsche Middenstands Hypotheekbank kreeg dit adres.
Nationale Bankvereeniging
Zijlstraat 45-49
1930
Misschien bij wijze van kerstcadeau nam Kok de gehele kosten van de verbouwing van de kiosk van de 'Vereeniging tot Bevordering van Vreemdelingenverkeer' in het station van Haarlem op zich. De Vereniging was zeer zeer dankbaar. Kok was bevriend met het bestuurslid van deze vereniging, Antoon Meijer, eigenaar van Hotel Royal op het Stationsplein te Haarlem.
Nieuwe Haarlemsche
Courant 24 12 1925
Haarlem's Dagblad
04 01 1926
Aan het einde van het jaar 1925 was de situatie met de vijf verschillende banken van Kok, Woltman en Kardoes aldus:
De Nederlandsche Middenstands-hypotheekbank ging eind december 1925 naar Haarlem. De oude directeuren, Woltman en Tjabbes, stapten op. Nieuwe directeur werd S. van Dam. Nieuwe commissarissen o.a. Woltman, Kok en A. Kuijper, de we later op de Nieuwe Gracht 11 nog zullen tegenkomen. Ook de Centrale Bank kreeg, wegens aftreding van het oude bestuur, een nieuwe directeur: Kok. Commissarissen o.a. Woltman en kandidaat notaris ter Laag. Het hoofdkantoor kwam in eerste instantie in Haarlem. De Veendammer Hypotheekbank kreeg in november 1925, naast directeur Woltman, als mede-directeur zoon J.P.H. Woltman. Het hoofdkantoor verhuisde april 1926 naar Hilversum. Zoals we al weten was de De Noord-Hollandsche Hypotheekbank, directeur de heer Kardoes, gevestigd op de Keizersgracht 407 in Amsterdam. Het hoofdkantoor van de Nederlandsche Spaarbank, waar Kok in 1925 nog steeds het enige agentschap van had, verhuisde in juni 1926 naar Hilversum. Directeur in 1927 was Johan Woltman.
Ned. Mid. Hyp. bank..
Haarlem's Dagblad
19 12 1925
Ned. Mid. Hyp. bank..
Verplaatsing kantoor.
Nieuwsblad van het
Noorden 24 12 1925
Centrale bank.
De Noord-Ooster
19 12 1925
Nederlandsche
Spaarbank.
Arnhemsche courant
15 06 1926
Veendammer
Hypotheekbank.
De Noord-Ooster
01 04 1926
18 december 1925 verscheen in alle kranten een waarschuwing geen zaken te doen met Salomon Liebermann. Zowel Woltman als Kok hebben hier blijkbaar overheen gelezen.
De Gooi-en
Eemlander
18 12 1925
1926
In het adresboek van Haarlem van 1 januari 1926 vinden we twee advertenties (dat moet wat gekost hebben). Een van Woningbureau en Makelaarskantoor 'Hako' en een paginagrote voor Kok in samenwerking met de N.V. Beleggings Mij. 'Noord-Holland'.
Bouw en Handelmij. 'Geko' had een grote opdracht gekregen voor de bouw van 234 arbeiderswoningen in Schoten met subsidie van het Rijk. Pas in december 1926 besloten B. en W. deze tweede hypotheek, onder nadere voorwaarden, te verlenen.
Nederlandsche
staatscourant
16 01 1926
Nieuwe Haarlemsche
Courant 17 12 1926
15 januari 1926 werd de bouwvergunning verleend. De 234 woningen, waaronder 32 winkelwoningen, hadden de naam projekt 'Zwaluwstraat 2'.
Het ging om huizen aan de Kanarie-, Leeuwerik, Lijster-, Meerkoet-, Meeuwen-, Nachtegaal-, Vinken-, en Zwaluwstraat, en de Vergierdeweg. De begroting was geraamd op F. 750.000. In april 1927 werden de laatste huizen opgeleverd. Er waren geen moeilijkheden, behalve dat er een paar huizen nog vòòr de vergunning werden opgeleverd, wat hen op een proces verbaal kwam te staan van onze oude bekenden wethouder Klein en directeur gemeentewerken Voorvelt. Wie de architect van de huizen was is niet bekend, maar ze waren wel zuinigjes gebouwd. Het merendeel had ook geen voortuintje. Het plattegrond was overigens wel beter dan de huizen die Lamberts had ontworpen.
Nachtegaalstraat
1930
Bouwtekening
1926
Wethouder H.J. Klein sprak op een ledenvergadering van de S.D.A.P. in gebouw Geko over de financieele positie van de gemeente en de aanstaande annexatie door Haarlem van Schoten.
Haarlem's Dagblad
01 02 1926
3 maart 1926 trad Cornelis Kok af als directeur van de Handelmaatschappij 'Geko'. Nieuwe directeuren werd A. van Rigteren en A. P. van der Loos.
Zij waren verantwoordelijk voor project 'Zwaluwstraat 2'.
Haarlem's Dagblad
30 03 1926
29 juni 1926 verscheen er een berichtje in het Haarlem's Dagblad dat er was begonnen met heien aan de Spaarndammerweg.

Haarlem's Dagblad
29 06 1926
Hiervoor moeten we nu even terug naar het project 'Rembangstraat'. Het bouwen van 100 arbeiderswoningen, waaronder 10 winkelwoningen. Na de bouwvergunning op 4 augustus 1925 was er vrijwel niets gebeurt. Kok had uitstel gevraagd van de bouw, maar dat hoefde niet want vanwege de eerdere proefboringen, wat telde als bouwactiviteit, bleef de vergunning gewoon geldig.
23 februari 1926 werd een tweede bouwaanvraag van Kok goedgekeurd, nu in naam van N.V. Beleggingsmij. 'Noord-Holland', voor nog eens 63 woningen en 7 winkelwoningen aan de Djambistraat en omgeving (project 'Djambistraat'). Een derde aanvraag, ook door Kok in naam van N.V. Beleggingsmij. 'Noord-Holland', voor 70 woningen, waaronder 5 winkelwoningen (project 'Indischestraat'), werd op 11 mei 1926 goedgekeurd.
Juni 1926 werd begonnen met heien. 29 oktober 1926 vroeg Kok vergunning tot wijziging van de funderingsplannen (over hei- of staalfundering). Zonder de vergunning af te wachten bleef hij doorbouwen. De vergunning werd niet verleend. Het werd een hele kwestie.
Kaart met de drie bouwvergunningen
en een vierde (nog zonder aanvraag).
Roodomlijnd project 'Rembang', blauwomlijnd
project 'Djambi', blauw project 'Indischestraat'.
Bouwtekening mei 1926
Er was ook een kwestie met de voor- en achtergevels, waar verkeerde stenen werden gebruikt (moesten verwijderd worden, gebeurde niet). Er was een kwestie met het zonder vergunning bouwen van twee garages. Er was een kwestie met hang- en sluitwerk die volstrekt onvoldoende waren (de ramen waren met lijm in elkaar gezet). Er was een kwestie met het ontbreken van strijk- en muurankers. Een kwestie met het niet stevig beborden van de platbalklaag. En dan was er nog de kwestie van het ontbreken van bouwmaterialen en geld (arbeiders moesten daarom ontslagen worden). Kortom: het liep niet lekker.
Na de zoveelste aanschrijving werd
Directeur van gemeentewerken
Voorvelt er zelfs melig van.
24 12 1926
40 bouwarbeiders werden ontslagen. Ze waren het hiermee uiteraard niet eens. Zie ook het bouwdagboek van de heer van Tol van 1 april 1927.
Nieuwe Haarlemsche
Courant 26 01 1927
bouwtekening met alle afwijkingen en de
illegale garages.
08 02 1927
De bijbehorende brief.
aan de gemeente.
08 02 1927
Gevolgd door weer een aanschrijving van de gemeente aan Kok. De Mij. Heijkoop & Gerritsen was verantwoordelijk voor de
bouw van de garages.
25 03 1927
8 februari 1927 stuurde de gemeente een deurwaarder naar de N.V. Beleggingsmij. 'Noord-Holland', kantoorhoudend aan de Zijlstraat 45- 49, want de bouwvergunning van project 'Indischestraat' was vervallen omdat er geen bouwactiviteit was geweest en er geen uitstel was gevraagd. Het is jammer, want de bouwtekeningen voor dit project waren een stuk aardiger (balkonnetjes en erkertjes) dan die van de andere projecten. De gemeente Schoten had genoeg van het eigengereide optreden van Kok en nam advocaat mr. A. Bruch in de arm om een ernstige waarschuwing op te stellen betreffende de bouw. Om het extra kracht bij te zetten werd het op 16 februari door twee rijksveldwachters bij relaas (dus met een mondelinge samenvatting) afgegeven aan Kok, op zijn woonadres, Villa Arenzano te Aerdenhout.
15 februari 1927. De officiële waarschuwing van de Burgemeester en Wethouders van Schoten, opgesteld in samenwerking met mr. A. Bruch:
De waarschuwing.
Bericht aan politie.
1 april 1927 vroeg de de opzichter van bouw-en woningtoezicht van de gemeente Schoten, de heer van Tol, om stopzetting van de bouw omdat het werk ondermaats was. Het bouwdagboek van de heer van Tol, over project 'Rembang- en Djambistraat' gaat tot 2 april 1927. Het is werkelijk een openbaring over alle wantoestanden te lezen.
2 april 1927 rapport van de directeur gemeentewerken Voorvelt aan de Burgemeester en Wethouders van Schoten. Kok werd 11 april 1927 aangeschreven verbeteringen aan te brengen.
Voorvelt aan B. en W.
2 april 1927.
B. en W. aan Kok.
11 april 1927.
Antwoord Kok.
op het bericht van
19 april 1927.
De bouw kwam stil te liggen. En op 11 juli 1927 kwam het tot een veiling van 70 huizen, waaronder 7 winkels. Johan Woltman kocht ze op.
Haarlem's Dagblad
12 07 1927
Het was een triest gezicht.
Nieuwe Haarlemsche
Courant 15 07 1927
Uiteindelijk kwam er een oplossing via weer een nieuwe N.V. De afwerking van de bouwwerken werd gedaan door N.V. tot exploitatie van onroerende goederen 'L'Espérance', gevestigd op de Keizersgracht 407 met als directeur J.W. Roozen, nu wonende te Leiden. In juli 1927 het project 'Rembangstraat' en augustus 1927 project 'Djambistraat'. De fouten zoals aangegeven in het rapport van 2 april werden verbeterd. Er werden nog twee gewijzigde bouwplannen ingediend om de overige problemen, zoals de zonder vergunning gebouwde garage's, op te lossen.
Er waren drie versies van de bouwtekeningen. Het is niet duidelijk wie de architecten van de eerste twee versies waren. Ze werden alleen ondertekend met 'de aanvrager Kok'. De derde gewijzigde versie, augustus 1927, was van architect Huib Tuninga. De meesten woningen waren 'type' A, of 'type B'. Verder waren er nog 5 typen winkelhuizen. 'Type B' had in de derde versie hetzelfde plattegrond als de huizen ontworpen voor project 'Zwaluwstraat', behalve dat het wc-raampje wat kleiner was, het aanrecht iets anders stond, en het schuurtje naar achteren was verplaatst. De huizen van project 'Rembangstraat' werden echter volgens het originele 'Type B' uit 1925 afgebouwd. Dit was een zeer eenvoudig rechttoe rechtaan plattegrond. Ook de gevels hadden geen spoor meer van baksteenversieringen, zo kenmerkend voor de Amsterdamse school (zie ook de ontwerpen van architect Lamberts).
Bouwtekening 'type A'.
Gewijzigde versie.
Augustus 1927
Djambistraat.
woning 'type A'.
Geen jaartal.
Bouwtekening 'type B '.
Augustus 1925
16 mei 1928 werd een verzoek van de N.V. tot exploitatie van onroerende goederen 'L'Espérance', nu met directeur F.J. Haije, om vergunning tot het in gebruik nemen van de eerste 9 (!) woningen aan de Bantam-en Indischestraat, verleend.
Er werd één timmerman-metselaar gezocht...
Haarlem's Dagblad
19 03 1926
23 maart 1926 kocht Kok van de gemeente Heemstede de grond van uitbreidingsplan XVII, een gebied ten noorden van de Zandvoortselaan, ten zuiden van de Eindenhoutstraat , ten oosten van de Leidsevaart en ten westen van de Herenweg. (De Eindenhoutstraat was waarschijnlijk de eerste aangelegde weg in het zuiden die op de verder nog lege kavels te vinden was, later werd de zuidkant begrensd door de nieuw aangelegde Crysanthemumstraat). Het werd park 'Rozenburg' genoemd. Alle straten binnen dit plan kregen bloemennamen, met als centrum het Rhododendronplein. Het wegenplan werd zoals te doen gebruikelijk bepaald door de gemeente. De eigenaar moest de grond voor de wegen gratis geven aan de gemeente en het geld betalen voor de aanleg. Kok betaalde voor de wegenaanleg F. 96.000.- .
Nieuwe Haarlemsche
Courant
25 03 1926
Raadsnotulen
Gemeente heemstede
25 03 1926
12 april 1926 was te Haarlem de jaarlijkse aandeelhoudersvergadering en aansluitend nog een 'Buitengewone Algemeene Vergadering' van de Nederlandsche Middenstands Hypotheekbank. Het rommelde erg bij de kleine aandeelhouders van die bank. Ze vormden een Comité van Actie. 4 juni was er een protestvergadering te Groningen. De directie, (S. van Dam was directeur, Woltman en Kok commissarissen), werd gedwongen een nieuwe vergadering uit te schrijven. De vergadering werd uiteindelijk vastgesteld op woensdag 7 juni in de Industriële Club te Amsterdam. Tot grote woede van de vele aandeelhouders in het noorden van het land. Zij zouden nu een voorvergadering gaan houden in Krasnapolsky. De bank kwam 23 juni met een voorstel, er zou een 'commissie van onderzoek' worden ingesteld. Het comité van actie waarschuwde er niet op in te gaan. Zie Woltman:
15 april 1926. Nanninga trad af als commissaris van Ned. Middenstands Hypotheekbank, in zijn plaats werd P.B. ter Laag benoemd.
Algemeen
Handelsblad
15 04 1926
21 april 1926 werd Petrus Kok, wonende te Schoten, door de Haarlemse rechtbank beëdigd als makelaar in onroerende goederen.
Nieuwe Haarlemsche
Courant
21 04 1926
29 april 1926 trad J.F. Haije af als directeur van N.V. Bouwmaatschappij 'Castor'. Nieuwe directeur C. Brokaar, Heemstede. De maatschappij werd verplaatst naar Amsterdam. De Centrale Bank, met als directeur Kok, Heemstede, was nu officieel gevestigd op de Zijlstraat 45-49. Commissarissen
Mr. L.V. Hoog, Woltman, jhr. A.L. van Spengler, P.B. ter Laag en goede vriend Antoon Meijer.
Wijzigingen Handelsregister.
Haarlem's Dagblad
29 04 1926
Ook op 29 april 1926 richtte Kok te Amsterdam de Bouw en Handelmaatschappij 'Bohama' en 'Bohama 1 tot en met 5' op.
Park Rozenburg te Heemstede:
1 mei 1926 verkocht de heer Cornelis Brokaar, bouwkundige te Heemstede, 12 januari 1926* benoemd als enig directeur van de N.V. 'Castor' , aan de heer Hendrik Hiemstra, bouwkundige te Amsterdam, als enig directeur van N.V. bouw-en handelmij 'Bohama' en aan de heer Daniel van der Leest, handelaar in bouwmaterialen te Haarlem, enig commissaris van 'Bohama' voor F. 90 000 twintig percelen bouwterrein te Heemstede in het park Rozenburg. In de tweede akte verkocht Brokaar, namens N.V. 'Castor' aan directeur Hiemstra en commissaris van der Leest van 'Bohama 1' voor
F. 45 000 tien percelen bouwterrein, ook te Heemstede, in park Rozenburg. Akte drie hetzelfde verhaal met dezelfde mensen, nu voor 'Bohama 2',
F. 90 000 voor twintig percelen. Zo ging het door tot en met Bohama 5. Geldleningen met hypotheek van de Veendammer Hypotheekbank te Hilversum. Alle akten werden 1 mei 1926 verleden voor notaris J.A. Houtzager, standplaats Amsterdam. Hij was naast notaris Wildschut, standplaats Haarlem, de huisnotaris van Kok.
* Pas in april 1926 vermeld in het Handelsregister.
In de rechtbankzitting van 16 juni 1928 meer over de verkoop van grond door 'Castor' aan de 'Bohama's. Getuige = Kok, verdachte J.J. W. = Woltman.
De Maasbode
16 06 1928
1 juni 1926 kocht de Centrale Bank ons pand, Nieuwe Gracht 11, van de N.V. Nederlandsche Credietbank.
7 juli 1926. De allesbepalende vergaderingen over de handel en wandel van de directie van Nederlandsche Middenstands Hypotheekbank.
De juridisch adviseur van de bank was mr. W de Rijke. Hij zou vanaf 1 maart 1928 kantoor houden op de Nieuwe Gracht 11. Na de hoofdvergadering, waarvan Kok voorzitter was, gingen beide partijen tevreden naar huis. De gladde praters Woltman en Kok hadden de ontevreden aandeelhouders weten te sussen. Zie Woltman:
De N.V. Wester bouw- en handelmij, de N.V. Nederlandsche bouw- handelmij. Oranje Nassau, N.V. bouw- en handelmij. Achilles en Phydias waren nu eindelijk officieel gevestigd in Haarlem. Allemaal met als adres Zijlstraat 45-49 (In het gebouw van de Nationale Bankvereeniging). Hier waren eerder al
de N.V. Beleggings Mij. 'Noord-Holland', de Nederlandsche Middenstands Hypotheekbank en de Centrale Bank ondergebracht.
Wijzigingen Handelsregister.
Haarlem's Dagblad
07 08 1926
Wijzigingen Handelsregister.
Haarlem's Dagblad
06 08 1926
De Centrale bank had nu eindelijk het lang beoogde adres in Aerdenhout, gemeente Bloemendaal. Het kantoor bleef op de Zijlstraat 45-49. Zoals vaak was Kok weer iets te voortvarend, want pas op 8 september 1926 kreeg hij vergunning om in villa Arenzano te mogen wonen.
Algemeen
Handelsblad
27 07 1926
13 augustus 1926 kreeg woningbureau HAKO telefoonaansluiting.
Haarlem's Dagblad
13 08 1926
J.F. Haije en zijn gezin woonden nog steeds Raadhuisplein 12. Cornelis Kok was eind 1925 verhuisd van de Rijksstraatweg 86 M naar de 82 M.
J.J. Haije woonde al sinds 1923 op de Fuhrhopstraat 18. De vader van de Haije's woonde vlakbij, in de Arnoldystraat. De ouders van Kok hadden kort in het winkelhuis op de Fuhrhopstraat 16 gewoond, en daarna de Haitsma Mulierstraat nr. 60. In maart 1926 verhuisden ze terug naar Amsterdam, naar de van Reigersbergenstraat. Petrus Kok, samen met J.F. Haije vormde hij HAKO, verhuisde, gezien zijn gezinskaart, hoogstwaarschijnlijk mee. Hij bleef bij zijn ouders (ondertussen woonden ze op de Witte de Withstraat, de verhuisdrift had J.P.G. Kok niet van een vreemde) tot aan zijn huwelijk in augustus 1928. Petrus bleef in Amsterdam, zijn ouders verhuisden in 1928 weer naar de Rijksstraatweg te Haarlem.
14 augustus 1926. De zestigste verjaardag van Antoon Meijer werd groots gevierd. Ant. Meijer was de zeer geliefde directeur van hotel Royal (Stationsplein 2 te Haarlem) geweest. 15 januari 1926 had Meijer afscheid genomen als eigenaar van Hotel Royal. Voor zijn verjaardag was een commissie samengesteld onder leiding van Kok, bestaande uit vertegenwoordigers van verschillende verenigingen, vrienden en oud stamgasten van Hotel Royal. Meijer was o.a. bestuurslid van de 'Vereeniging tot Bevordering van Vreemdelingenverkeer Haarlem'. Hij was een goede vriend van Kok.
60 jaar.
Haarlem's Dagblad
09 08 1926
Afscheid.
Nieuwe Haarlemsche
Courant
18 01 1926
Stationsplein. Links
Hotel Royal.
1925
Al In juli 1920 had Ant. Meijer Hotel Velserend te Santpoort gekocht en laten opknappen. Kok zou in mei 1930 de nieuwe eigenaar van Hotel Velserend worden.
De heer Meijer
over het vernieuwde
hotel Velserend.
Haarlem's Dagblad
17 03 1921
Reclame Velserend. en Hotel Royal.
Op de hoogte
01 12 1924
Vreemdelingen verkeer en Velserend.
Haarlem's Dagblad
18 06 1926
Eind augustus 1926 kocht Kok op de veiling percelen bouwterrein aan de westzijde van de Vogelenzangseweg, met daarop zes dubbele villa's in aanbouw. Deze villa's lagen naast de toegangsweg tot de Villa Arenzano.
Haarlem's Dagblad
31 08 1926
8 september 1926 kreeg Kok de bewoonbaarverklaring van villa Arezano en mocht hij er met zijn gezin gaan wonen. Ook op 8 september werd de vergunning voor de bouw van een kippenhok op het terrein verleend.
Villa Arenzano
2015.

De hal met links de entree en het trapje naar de heerenkamer'.
Villa Arenzano
2015.
Zowel Kok als Woltman leefde op dit moment op zeer grote voet. Woltman en zijn gezin woonden sinds juni 1925 in villa 'Hilverhouse' op de
's Gravelandscheweg 76b te Hilversum. In 1926 liet Woltman een peperdure villa bouwen onder architectuur van P.J. Verschuijl. Dit was zijn huwelijksgeschenk voor zoon Johan en Martje Drewes in mei 1927. De villa kreeg de naam 'Ons hoekje'.
Villa Hilverhouse
ca. 1926
'Ons Hoekje'
ca. 1930
Veiling in Hilversum. Voor het eerst gebruikte Kok naast zijn kantooradres op de Keizersgracht in Amsterdam zijn nieuwe woonplaats Aerdenhout.
De Telegraaf
05 11 1926
9 december 1926 werden de bouwplannen van percelen in het uitbreidingsplan XVII (park 'Rozenburg') te Heemstede goedgekeurd. Bouw en Handelmaatschappij 'Bohama I' bouwde in ieder geval de zes villa's in het oranje.
Kadastrale kaart
Heeemstede XVII
1927
14 februari 1927 werden percelen van park 'Rozenburg' geveild omdat de bouwers niet aan de hypotheekvoorwaarden hadden voldaan. Ze werden gekocht door N.V. 'Lutine', directeur architect J.G. van den Bel. Dit bleek volgens de rechtbankverslagen een normale gang van zaken, althans voor Woltman en Kok. De percelen konden dan een nieuwe, hogere hypotheek krijgen. De enige andere keren dat park 'Rozenburg' genoemd werd was in advertenties van architect D. van Zetten (die op hetzelfde moment ook ons pand verbouwde), en van architect en makelaar A. van Rigteren (van N.V. Geko).
Nieuwe
Haarlemsche
Courant
29 01 1927
Nieuwe
Haarlemsche
Courant
15 02 1927
D. van Zetten.
Algemeen
Handelsblad
27 04 1927
J. Wierda en P. Kunst
kregen de opdracht.
Haarlem's Dagblad
07 05 1927
Algemeen
Handelsblad
24 03 1928
Haarlem's Dagblad
25 08 1928
Aan het eind van het jaar een terugblik in de krant. De eerste over het tekort aan arbeiderswoningen in Haarlem, Schoten en Heemstede. Wethouder Klein was in 1923 erg blij toen Kok de grondaankoop in Schoterveenpolder terugtrok, om dat daar dan échte arbeiderswoningen met een lage huur gebouwd konden worden. In het tweede artikel, de laatste Raadsvergadering van Schoten, bleken er meer grieven tegen Kok, iets met een door hem afgebroken schutting op gemeentegrond (het ging om een schutting geplaatst door de gemeente om de percelen Rijksstraatweg / Fuhrhopstraat). De heer Heidstra verweet B. en W. een slappe houding tegenover de heer Kok, 'die blijkbaar kan doen wat hij wil'. De voorzitter (waarnemend) burgemeester Heerkens Thijssen verwierp dit verwijt en zei dat hij Kok op ongemakkelijke wijze onderhanden genomen had, 'B. en W. gaan voor niemand opzij'. Met karikaturen, o.a. van wethouder Klein.
De woningtoestand.
Haarlem's Dagblad
10 12 1926
Laatste gemeenteraads
vergadering
van het jaar.
Haarlem's Dagblad
22 12 1926
Er is zelfs een foto van de kwestie schutting! Het speelde allemaal in mei 1926.
Nieuwe
Haarlemsche
Courant
08 05 1926
Haarlem's Dagblad
11 05 1926
Nieuwe Haarlemsche
Courant
22 05 1926
1927
Jaarverslag van de Veendammer Hypotheekbank over het jaar 1926. De cijfers waren nog slechter dan het jaar ervoor. De N.V. Beleggings-Maatschappij 'Noord-Holland' werd later een 'stroppen- maatschappij' genoemd. Ze kocht de stroppen op voor de Veendammer Hypotheekbank.
Het Vaderland
26 04 1927
Nog vòòr de vergunning verleend was had architect van Zetten al een aannemer gevonden voor de verbouwing van Nieuwe Gracht 11.
Nieuwe Haarlemsche
Courant
03 01 1927
10 januari trad Kok af als directeur van N.V. Bouw- en Handelmaatschappij 'Atilla', Zijlstraat 45 Haarlem. Nieuwe directeur: D. van der Leest.
15 januari 1927 werd vergunning verleend voor de verbouwing van Nieuwe Gracht 11. Eigenaar N.V. Centrale Bank, Vogelenzangseweg 12, Aerdenhout. Gemachtigde was architect D. van Zetten.
Advies aanvraag verbouwing Nieuwe Gracht 11. 'Geen bezwaar, om reden aan woningen als deze, in deze gemeente geen bijzondere behoefte meer bestaat'.
7 januari 1927
Waarom Kok ons pand kocht, ingericht als bank met kluis en woning voor de bankdirecteur boven, op eerste stand gelegen aan de Nieuwe Gracht, en vervolgens besloot het te verbouwen tot kleine kantoren is onduidelijk.
31 januari 1927 werd in de Nederlandsche staatscourant de oprichting vermeld van Bouw- en Handelmaatschappij 'Alvana' te Amsterdam. Het was geen gelukkig gekozen naam, want sinds jaar en dag was er de zeer bekende N.V 'Alvana' , importeur van Sigaren, sigaretten en tabak. Bij de naam 'Alvana' zal iedereen in die tijd eerst aan sigaren gedacht hebben. 'Onze' Alvana hield zich bezig met onroerend goed.
In februari was er een heuse rel tussen bouwmaatschappij 'Schalkwijk' en de gemeente Schoten. De bouwmaatschappij vorderde
F. 220.000 terug van de gemeente aan volgens hen te veel betaald geld voor het aanleggen van straten. De gemeente Schoten vroeg een vaststaand totaalbedrag voor de aanleg en geen inzage achteraf of er misschien teveel betaald was. Wanneer de rechtbank deze eis van het bouwbedrijf inwilligde, en ook misschien van andere bouwbedrijven, zou de gemeente Haarlem na de annexatie voor de kosten opdraaien. Ook Kok's mening werd gevraagd. Hij meende dat hij wel een half miljoen aan straatkosten had betaald, maar was niet van plan er een zaak van te maken. Hij nam de directeur van gemeentewerken Voorvelt in bescherming en zei dat deze hem altijd alle inlichtingen had gegeven waar hij rechtmatig om vroeg.
A
B
A en B
Haarlem's Dagblad
09 02 1927
Haarlem's Dagblad
10 02 1927
Kok voelt zich verkeerd
geciteerd.
Nieuwe Haarlemsche
Courant
11 02 1927
Cornelis Kok gebruikte voor het eerst ook het adres Keizersgracht 407.
Algemeen
Handelsblad
16 02 1927
De Nederlandsche Beleggings mij. 'Noord Holland' bleek verhuisd van de Zijlstraat naar de Kruisweg 70 B rood. Er was een bijkantoor op de Timorstraat 18. Op dit adres woonde de heer N.J. Schansema, taxateur.
Haarlem's Dagblad
12 03 1927
25 maart 1927 werd de vergunning verleend voor het in gebruik nemen van de Nieuwe Gracht 11. De verbouwing had dus iets meer dan 2 maanden geduurd. Het was natuurlijk sinds 1896 een bankgebouw met de woning van de directeur op de eerste verdieping. Sinds het vertrek van de laatste directeur Fontein was deze verdieping al opgedeeld in werkkamers. Maar toch zijn de keuzes van architect D. van Zetten niet echt te volgen.
De, waarschijnlijk prachtige, centrale trap werd vervangen door een kleine, steile trap in een soort gangkast naast de hoofdingang met slechts indirect daglicht via een bovenlicht. Ook werd de serre van Smissaert afgebroken en de ooit openslaande deuren naar de serre vervangen door ramen (zodat op de bel-etage heden ten dage de ramen aan de tuinzijde van de Centrale Bank zijn, en de ramen aan de straatkant van Smissaert).
Bestaande toestand.
Bouwtekening 1927
De verbouwing.
Bouwtekening 1927
April 1927. Tussen de correspondentie van Kok en de gemeente over het het project 'Rembang- Djambistraat' is er opeens dit briefkaartje:
Verhuisd naar
Spaarnelaan 2,
Heemstede.
Deze prachtig ontworpen villa
(Kok had er niets mee te maken)
op een mooie plek, was gebouwd in 1921.
13 juni 1927 kreeg Kok vergunning voor een, onder architectuur van de heer H. Fockens, te bouwen garage op het terrein van de villa.
1 mei 1927 werd de gemeente Schoten, samen met delen van Heemstede, Spaarndam, Haarlemmerliede en Bloemendaal, door de gemeente Haarlem geannexeerd.
Kok besloot de Villa Arenzano te veilen.
Haarlem's Dagblad
04 05 1927
Haarlem's Dagblad
09 05 1927
5 mei 1927 bleek het kantoor van Handelmij. 'Alvana' gevestigd op de Nieuwe Gracht 11. Directeur was C. Kok.
Haarlem's Dagblad
25 05 1927
22 juni 1927 probeerde C. Kok een landhuis te Bergen, gekocht door Woltman, te verkopen. Het ging om park Meerwijk, met hypermoderne, door architecten van de Amsterdamsche school gebouwde huizen.
Algemeen Handelsblad
22 06 1927
23 juni 1927 de eerste advertentie voor de verhuur van kantoorlokalen op de Nieuwe Gracht 11. Met inbegrip berging kluis. Moeilijk na te gaan welke verdieping het was. Waarschijnlijk de eerste, hoewel die vier werkkamers telde.
Haarlem's Dagblad
23 06 1927
25 juni 1927 was thuis bij Woltman in Hilversum een buitengewone algemene vergadering van aandeelhouders van de Veendammer Hypotheekbank
waarbij de gehele directie (Woltman en zijn zoon) en de commissarissen vervangen werden door mensen uit de kring van Salomon Liebermann.
27 juni 1927 schreef de nieuwe directeur Möhring van de Veendammer Hypotheekbank 965.000 aandelen over naar de N.V. Disconto Bank voor Credietinstellingen te Den Haag. Directeur van deze bank was de heer Liebermann. Kok stond borg voor hypotheken van de Veendammer tot een bedrag van F. 7000 000, waar hij al een tijdje vanaf wilde. In de zitting van de rechtbank op 27 juni 1928 vertelde Kok hoe dat in zijn werk ging. Verdachte M. = Möhring. De kandidaat-notaris was zeer waarschijnlijk J.B ter Laag.
Haarlem's Dagblad
27 06 1928
4 juli 1927 een steunbetuiging voor Kok (abusievelijk J.P C. genoemd in plaats van J.P.G.).
Haarlem's Dagblad
04 07 1927
C.J. Holleman had een sigarenhandel op de Rijksstraatweg 37. Bij hem kon je in 1924 gratis kaartjes krijgen voor de Studebaker's tentoonstelling.
B. Prijs was een dames-en herenkapper op de Cronjéstraat 54 en lid van bestuur van de in 1924 opgerichte 'Schotensche Winkeliersvereeniging'.
W.F. Sandijck was banketbakker op de Floresstraat 7, wat Kok in 1924 had omgebouwd tot winkel en waar hij zorgde voor een brede stoep in plaats van voortuintjes. F. Slot was uitbater van het café-restaurant 'Geko'. J. v.d. Toorren is een onbekende. Het waarom van deze steunbetuiging is onbekend. Waarschijnlijk had het te maken het slecht verlopen project 'Rembang- Djambistraat'.
Handelmij. 'Alvana' deed ondertussen dingen die alle handelmij. onder Kok deden; opkopen en verkopen van huizen en bouwgronden.
Haarlem's Dagblad
26 07 1927
Behalve dan de twee advertenties waarin het over kruidenierswaren en comestibles ging. Vader J.P. Kok sr. stond nog steeds in de adresboeken ingeschreven als winkelier / kruidenier, waar zijn winkel dan was is echter niet bekend. 'Winkelfilialen' duidt toch op een keten. Petrus Kok trouwde augustus 1928 in Amsterdam en werd daar grossier in levensmiddelen. Maar ook met kruidenierswaren en comestibles. De reden was misschien dat (net beëdigd makelaar) Petrus Kok terug was gegaan naar Amsterdam, en daar ingeschreven stond als handelsreiziger in conserven artikelen en grossier van levensmiddelen.
Algemeen Handelsblad
13 07 1927
De courant Het nieuws
van den dag
21 07 1927
2 augustus 1927 diende Kok een bouwvergunning in voor 'Het verrichten van een inwendige verbouwing van villa 'Arenzano' bestaande uit het vergrooten van de eetkamer, het verplaatsen van de keuken en w.c. met bijkomende werken'. Bedrag der begroting F. 1000. De vergunning werd verleend. Een vergunningsaanvraag op 30 augustus 1927 van directeur C. Kok, Handel MIj. "Alvana', op de Nieuwe Gracht 11, voor het maken van een varkensstal in plaats van de bestaande kippenhokken, werd niet verleend.
5 september 1927 bleek de N.V. Beleggings mij.'Noord-Holland' van de Zijlstraat 45-49 verplaatst naar de Kruisweg 70b rood. Er was een buitengewone algemene Vergadering van aandeelhouders.
Haarlem's Dagblad
05 09 1927
Oktober 1927 verhuisde het kantoor van de N.V. Centale Bank naar Hilversum. Nieuwe directeur was de zoon van Woltman: Johan.
21 oktober 1927 ontmoette Meijnema, laatste directeur van de Veendammer Hypotheekbank, in hotel Princesse te Brussel de heren Liebermann, mr. Spaargaren, Möhring en Kok, die samen met zijn vrouw was. Ze waren allen in avondtoilet, hadden geen tijd voor Meijnema, want ze stonden op het punt naar de schouwburg te gaan. De volgende morgen was er een zakelijke bijeenkomst, maar Kok was daar niet bij. (Verhoor 19 juni 1928)
Hoewel we nu op de zaken vooruitlopen, is hier vast een zeer geestig rechtbankverslag van de Maasbode over o.a. de ontmoeting in Brussel.
De Maasbode
20 06 1928
J. Wildschut was sinds 1923 de notaris voor alle Haarlemse zaken, maar J.A. Houtzager ging over de akten in Amsterdam. In het repertorium (het register waarin de verleden akten worden ingeschreven) van Houtzager zien we dat er in de laatste drie maanden van het het jaar 1927 een uitzonderlijke activiteit was. Bijna alle akten in deze periode hebben te maken met Kok, en zijn bouw- en handelondernemingen, of zoals de rechtbank het noemde 'planeet-maatschappijen'. Er gingen opeens heel wat bedragen heen en weer. We zien bekende namen, zoals Geko, Castor, Alvano, en de maatschappij tot exploitatie van onroerende goederen L'Espérance. Er waren nieuwe namen van bouw-en handelmaatschappijen, die 15 september 1927 bleken te zijn opgericht, o.a. 'Ardia', 'Gedio' en 'Alnero', allen te Amsterdam. Kok en A. Kuiper waren sinds 1925 enig directeuren van de N.V. Zaandamsche Bouwmaatschappij 'Het Oosten', ook gevestigd te Amsterdam. In de rechtszaak werden nog meer, tot nu toe onbekende, maatschappijen genoemd...
Een goed inzicht hoe een stroppenmaatschappij en de talloze N.V.'tjes werkten:
De Telegraaf
16 06 1928
1 december 1927 een bizar bericht in de kranten : de N.V. Beleggingsmaatschappij Noord-Holland bestond niet meer, sommige berichten spraken zelfs over liquidatie, en de transacties waren overgenomen door net opgerichtte N.V. Bouw-en Administratiekantoor 'Maraboe'. De Veendammer Hypotheekbank stond garant. Directeur van de Maraboe was Möhring. Enige aandeelhouders: Kok en Woltman. De kranten hadden gelijk. Hoe het precies zat werd pas duidelijk in de rechtbankverslagen van de Veendammer Hypotheekbank (1928) en het proces tegen Liebermann (1929).
Het Vaderland
02 12 1927
De Maasbode
02 12 1927








































































































