
De jaren 1926 -1942
Johannes Petrus Godefridus Kok
Deel 2 Kok / Schoten tot 1925
Eigenaren: N. V. "Centrale Bank" gevestigd te Veendam 1926 - 1928. N. V. Bouw- en Handelmaatschappij "Alvana" gevestigd te Amsterdam 1928 - 1933.
N.V. "de Nederlandsche Spaarbank" gevestigd te Groningen, kantoorhoudend te Schiedam 1933 - 1942. Johannes Pieter Hendrik Woltman 1942.
Johannes Petrus Godefridus Kok (Nieuwer Amstel, 19 oktober 1896 - Heemstede, 30 december 1965, 69 jr.)
Zoon van Johannes Petrus Kok (1871 -1959), diamantslijper, later kruidenier, en Elisabet Aartje van den Hazenkamp (1872 -1946).
Johannes Petrus Godefridus Kok liet meestal de 'G' van Godefridus weg.
Getrouwd Amsterdam 22 november 1917 met:
Susanna Francisca Maria Haije (Amsterdam, 28 november 1897 - Haarlem, 1990, 93 jr.)
Dochter van Jacobus Johannes Haije (1865 - 1942), conciërge, en Johanna Frederika Pijl (1867 - 1920).
Kinderen:
Johanna Juliana Wilhelmina (Ans) (Amsterdam, 23 juli 1919)
Levenloze dochter. Haarlem, 27 augustus 1920
Elisabeth (Beb) (Schoten, 21 augustus 1921)
Jan (Schoten, 15 oktober 1922)
Astrid Susanna Francisca Maria (Haarlem, 30 oktober 1937 - Velsen, 8 februari 1941, 3jr,)
Rudi (Haarlem, 23 mei 1941 - Heemstede 4 januari 1944, 2jr,)
Johannes Petrus Godefridus had een oudere zus, Anna Elisabeth (oktober 1892) en broer, Cornelis (oktober 1893). In juli 1902 werd de jongste broer, Petrus, geboren.
Papa Johannes Petrus was diamantslijper. Hij was sinds 1898 lid van de ANDB (Algemeene Nederlandse Diamantbewerkersbond). Dit was verplicht, anders kon je het vak niet uitoefenen. De ANDB kreeg overigens veel dingen voor elkaar, waaronder ziekte- en werkloosheidsuitkering, pensioen, afschaffing kinderarbeid, en gelijke betaling voor vrouwen. Veel leden bleven lid, ook als ze ander werk hadden gevonden. Dit was omdat alleen kinderen van ANDB leden mochten worden opgeleid in het vak. Wanneer er werk was hadden ze een zeer behoorlijk inkomen. Maar er waren ook regelmatig tijden dat er geen werk was, dit hing o.a. af van de diamantaanvoer. De meeste leden waren Joods. Alle mensen die niet Joods waren werden voor het gemak 'christenen' genoemd. Deze christenen bewerkten meestal de wat kleinere stenen. De familie Kok was Rooms Katholiek.
In augustus 1907 werd Cornelis door zijn vader in de fabriek H. Roelina (Rozengracht 168) opgeleid tot brillantversteller. 23 maart 1910 slaagde hij voor zijn examen. April 1911 begon J.P.G. zijn loopbaan, eerst bij zijn vader in Roelina, later bij Kampfraath (Albert Cuypstraat 2-6). 3 september 1914 haalde hij zijn examen als brillantslijper. Jongste zoon Petrus ging naar de MULO en werd kantoorbediende.
Stoomdiamantslijperij Kampfraath
Na 1950 van A. van Moppes.
ca. 1950
Diamantberwerkers in 1913.
Verstellers zaten altijd aan het raam en
snijders met hun rug naar het raam.
Leerlingenkaart
Cornelis
Leerlingenkaart
J.P.G.
De jongens zaten maar kort in het vak. In de eerste wereldoorlog werd er goed verdiend. Maar na de oorlog, toen de handel in Antwerpen weer opbloeide, bleken de Amsterdamse vaklieden (dankzij hun goede vakbond) te duur en was er voor hen bijna geen werk meer. 'Geschrapt 2e lid art. 6'
bekende dat het lidmaatschap verviel 'voor die leden, aan wie het Bestuur, uit hoofde van hun uittreding uit het diamantbewerkersvak, of wegens hunne gebleken voortdurende lichamelijke of andere ongeschiktheid tot uitoefening van dit vak, het lidmaatschap heeft opgezegd'. Ze konden daarna weer lid worden maar hadden dan de eerste drie maanden geen recht op uitkeringen bij ziekte of ongeval.
Ledenkaart ANDB
Cornelis.
Voor-en achterkant.
Ledenkaart ANDB
J.P.G..
Voor- en achterkant.
Zowel Cornelis als J.P.G hadden, gezien hun ledenkaarten, weinig werk. Cornelis moest in 1914 in militaire dienst. Hierna keerde hij niet meer terug in het vak. Hij werd kantoorbediende.
6 augustus 1914 trouwde Anna Elisabeth Kok te Amsterdam met Jacobus Johannes Haije jr., kantoorbediende. Zij was 21 en hij 22 jaar.
Hij was een zoon van Jacobus Johannes Haije (1865 - 1942), kruier, later kantoorloper en conciërge, en Johanna Frederika Pijl (1867 -- 1920).
Naast oudste zoon Jacobus Johannes (maart 1892) hadden ze nog vijf kinderen, Johannes Frederik (1894), Susanna Francisca Maria (1897), Johanna Frederika (1901) en Wilhelmina (1905). Johanna Frederika stierf in 1907, een maand voor ze zes jaar werd. Het laatste meisje (1908) werd ook Johanna Frederika genoemd. De familie Haije was Hersteld Evangelisch Luthers.
Hoewel vader Kok regelmatig veel werk had als diamantslijper had hij op de van Oldebarneveldtstraat 33 daarnaast een melkslijterij om de slappe tijden op te vangen.
Ledenkaart ANDB Johannes Petrus
Voor-en achterkant. Zijn pensioen werd
keurig tot zijn dood uitgekeerd.
April 1917 werd er een advertentie geplaatst van J.P.G. Kok. Hij had een winkel in boter, kaas, eiereren, kruideniers- en grutterswaren op het Staringplein 8.
Amstelbode
07 04 1917
22 november 1917 trouwde J.P.G. Kok te Amsterdam met Susanna Francisca Maria Haije. Hij was 21 en zij 19 jaar. Ze was de oudste dochter van
Jacobus Johannes Haije en Johanna Frederika Pijl. Ze gingen wonen op het Staringplein 8.
Huwelijksakte
Vader Kok heeft als beroep winkelier
Volgens het adresboek van Amsterdam woonden ze van 1917 tot 1919 op dit adres. Ze hadden ook telefoon. Kok had nu een winkel in Koloniale Waren en Comestibles. Onder koloniale waren verstond men koffie, thee, cacao, tabakswaren, rietsuiker en tropische specerijen. Comestibles waren fijne kruidenierswaren.
31 oktober 1918 trokken de schoonouders van Kok en de twee ongetrouwde schoonzusjes Johanna Frederika en Wilhelmina bij hen in. Waar Kok nu woonde is onduidelijk. Op zijn registratiekaart staan na Staringsplein 8 nog vier adressen vermeld, de 1ste Helmersstraat 275 II, de Lauriergracht 89 hs, de van Oldebarneveldtstraat 68 I en het DaCostaplein 1 hs.
Registratiekaart
Amsterdam.
familie Haije
Registratiekaart
Amsterdam.
familie Kok
22 mei 1919 trouwde broer Cornelis Kok te Amsterdam met Maria Wilhelmina Beugeling. Hij was kantoorbediende, 25 jaar oud, zij was 22.
J.G.P. Kok en zwager Jacobus Johannes Haije waren getuigen. J.P.G. Kok woonde volgens de akte niet in Amsterdam maar in Schoten, wat raar is.
Huwelijksakte
Vader Kok heeft als beroep diamantslijper.
Volgens de registratiekaart van Kok lijkt het erop dat hij, zijn vrouw, zijn schoonouders en de twee schoonzussen al in februari 1919 inderdaad tijdelijk naar Schoten zijn gegaan. Dit zou dan zijn naar de Spaarnhovenweg 22. Hoe ze dat deden met hun werk, J.P.G. met zijn winkel en (schoon)vader Haije als kantoorlooper is onbekend.
23 juli 1919 werd, in Amsterdam, dochter Johanna Juliana Wilhelmina (Ans) geboren. Zij werd ingeschreven als Herseld Evangelisch Luthers, net als haar moeder.
8 oktober 1919. (Schoon)vader Haije en zijn gezin vonden woonruimte in de Koogstraat 7 II te Amsterdam. Het gezin Kok woonde op hun beurt nu een paar maanden bij hen in.
1920
In april 1920 kwam er duidelijkheid over het tijdelijk vertrek naar Schoten. De mooie zaak in Koloniale Waren met telefoonaansluiting was failliet.
De Amsterdammer
23 04 1920
De Amsterdammer
06 05 1920
3 februari 1920 werd het gezin Kok uitgeschreven uit Amsterdam en vertrokken ze naar Haarlem, Molenaarstraat 47.
12 mei 1920 was de officiële inschrijving in Haarlem. J.P.G. vertrok als winkelier en kwam aan als makelaar.
Gezinskaart Kok
Haarlem
17 maart 1920 overleed te Amsterdam (schoon)moeder Johanna Frederika Haije. Ze werd 52 jaar.
Op de Molenaarstraat opende Kok een makelaarskantoor onder de niet zo originele naam 'Mercurius'. Het eerste huis wat hij aanbood kostte F. 14.200. Hypotheek beschikbaar.
Het nieuws van den dag
24 04 1920
27 augustus 1920 beviel Susanna van een levenloos meisje. Het gezin woonde nu op de Kleverparkweg 191 te Haarlem.
Uit de gezinskaart blijkt dat het gezin officieel in december 1920 vertrok naar Zandvoort. Het nieuwe adres was Dr. Joh. Mezgerstraat 38 te Zandvoort. Het vele verhuizen zou een constante blijven in hun leven.
De Telegraaf
16 11 1920
Algemeen Handelsblad
15 11 1920
De Telegraaf
15 11 1920
Dr. Joh. Mezgerstraat.
Het was het derde huis rechts in het donkerbruin. (je kijkt
naar de zijgevel van dit huis).
1920
1921
Het huizenaanbod werd groter.
De Telegraaf
18 01 1921
7 maart 1921 werd de akte van oprichting van de N.V. Noord-Hollandsche Hypotheekbank in de Staatscourant gepubliceerd. De hoofdzetel was gevestigd in Amsterdam. Directeur was de heer J.W. P. Kardoes, oprichter en één van de vier commissarissen J.J. Woltman, directeur van de Veendammer Hypotheekbank. Al op 19 maart 1921 had J.P.G. Kok het agentschap van de Noord-Hollandsche Hypotheekbank bank voor Haarlem en omstreken. Kok had volgens eigen zeggen in 1921 ook voor het eerst zakelijk contact met De Veendammer Hypotheekbank. Pas in 1923 ontmoette hij Woltman sr. persoonlijk (rechtbankzitting 16 06 1928).
Algemeen Handelsblad
14 03 1921
Kok noemt zich naast makelaar
ook bouwkundige.
De Telegraaf 19 03 1921
Het adres van Kok was nu Dr. Leydsstraat 72, Schoten. Een maand later woonden ze weer in Zandvoort, Koninginneweg 19, maar was er een adres (directiekeet) aan het Raadhuisplein 1 te Schoten. Eind Juni was het weer omgekeerd, en had Kok een Postbox in Zandvoort.
De courant
30 04 1921
De courant
01 06 1921
Algemeen Handelsblad
04 06 1921
Algemeen Handelsblad
29 06 1921
Kok ontdekte het systeem van subsidies. Hij kocht, nu als 'bouwkundige', grond om er zelf huizen te laten bouwen. De gemeente kreeg hiervoor geld uit 's- Rijks kas. De woningen moesten aan strenge voorwaarden voldoen. De plannen van Kok voor twee woningen in Zandvoort werden nader bekeken omdat het aantal kubieke meters te groot was. Uiteindelijk werd in september 1921 alsnog de F. 4000 uitgekeerd. Tegelijkertijd kreeg Kok subsidie voor het bouwen van in totaal 19 woningen in Schoten. Dit ging o.a. over de woningen aan het Raadhuisplein.
De aanbesteding van het ministerie van Arbeid.
Nederlandsche
staatscourant
07 12 1920
De voorwaarden.
Kok was nr. 263.
Nederlandsche
staatscourant
01 07 1921
Nrs. 236, 237 en 263.
Nederlandsche
staatscourant
01 07 1921
Waar Kok in Zandvoort liet bouwen, zonder enige ervaring als bouwkundige, is onbekend. Ondanks de subsidie van het Rijk en de welwillendheid van de gemeenten, was het voor Kok moeilijk geld bij elkaar te krijgen. Er kwam geld vrij doordat hij als makelaar huizen verkocht. En er kwamen typische Kok constructies, die nauwelijks te begrijpen waren. Zoals de zes akten afgesloten op 15 maart 1920. Notaris was A.J.C. Daamen, standplaats Haarlem.
In de eerste akte werd een huis aan de Straatweg te Schoten door ene J.P. van Schie, landman te Schoten, verkocht aan Kok, diamantbewerker, wonende te Amsterdam. Kok betaalde F 7.500 In de tweede akte verkocht Kok dit huis aan de heer J.L. J. Boddens, decoratieschilder te Amsterdam, voor de som van F. 9000. In akte drie bleek Boddens wegens te leen ontvangen gelden, F. 6000 schuldig te zijn aan de heer J.M.H. van der Grinten, kolonel der artillerie te Ede. Boddens moest het geld terugbetalen voor 15 maart 1925. Akte vier is een schuldverklaring van Boddens van F. 2000 aan de heer J. van Gerve, koopman, wonende te Amsterdam. ook deze schuld moet voor 15 maart 1925 worden afgelost. In akte vijf verkocht de heer C. de Rooij, zonder beroep, wonende te Haarlem, aan Kok en van Gerven een huis en erf aan de Balistraat in Schoten voor F. 5.200. In de laatste akte, nummer zes, bleken de heren Kok en van Gerven F. 3000 schuldig te zijn aan de heer N. Geels, zonder beroep, wonende te Alkmaar. Ook deze schuld moest voor 15 maart 1925 afgelost worden. 22 juli 1921 werden in een soortgelijke constructie vier akten opgemaakt. Weer met Kok, nu koopman te Haarlem, en J. van Gerve, nu ijsfabrikant te Haarlem. Nieuw waren de dames Janssen, dochters van de heer Petrus Theodorus Janssen, zonder beroep, wonende te Haarlem. Kok leende van hen F.10,000,- met als onderpand een huis aan de Kleverparkweg, wat Kok dezelfde dag voor F. 15.500 gekocht had van De Heer B.J.M. van Tetering, ambtenaar bij de Rijksverzekeringsbank te Amsterdam, wonende te Haarlem. Deze van Tetering had weer een schuld van F. 8000 aan de heer van Gerve. Ook Kok bleek een schuld te hebben aan van Gerve, groot
F. 5000. Onderpand was hetzelfde huis aan de Kleverlaan. Alle leningen moesten nu uiterlijk 21 juli 1925 afbetaald zijn. In augustus 1921 weer een zelfde stoelendans met Kok, van Gerve en de dames Janssen, nu met een gepensioneerd kapitein der Infanterie Oost Indisch Leger, wonende te Haarlem, en een huis aan de Krelagestraat te Haarlem.
Kok zag grootse mogelijkheden in Schoten. De gemeenteraad van Schoten had het plan woningbouwcomplexen voor arbeiders te bouwen met goedkope woningen. Het moest alles wel het karakter van een tuindorp krijgen. Er waren een paar grote woningbouwverenigingen, waaronder 'Eigen haard' en 'St. Bavo'. Maar ook particuliere initiatieven, zoals van Kok. De grondprijs in Schoten was laag, de vraag naar huizen groot.
Alle woningen moesten voldoen aan door het Rijk voorgestane minimumeisen. Particulieren, zoals Kok, bouwden het liefst herenhuizen en villa's omdat er meer vrijheid in ontwerpen was en het veel meer opbracht.
Op de kadestrale kaart van Schoten uit 1922 kun je zien hoeveel nog onbebouwd was. Het nieuwe raadhuis van Schoten werd in 1907 gebouwd aan de Rijksstraatweg. Recht tegenover, aan de andere kant van de Rijksstraatweg, kwam het Raadhuisplein, alles op gronden van Bredius.
A= Raadhuisplein
B= Timorstraat
C= Lokatie Geko
Kadastrale kaart
Schoten 1922
Met de 10 huizen die Kok wilde bouwen aan de geprojecteerde Raadhuisplein had hij, behalve subsidie van het rijk, ook eindelijk een echte geldschieter: Cornelis Jan Arend Bredius, Heer van Zaanen, grootgrondeigenaar en landbouweconoom, wonende Huis te Zaanen te Schoten. Van hem kocht Kok op 27 mei 1921 voor F. 7854 onbebouwde grond. Daarnaast kreeg kok een krediet van Bredius tot F. 24.000 . Bij elke aanvraag voor een deel van het krediet moesten de gronden opnieuw getaxeerd worden door de heer Toth, makelaar te Schoten. Na taxatie kreeg Kok een kwitantie met het gevraagde bedrag. Het van dit krediet opgenomen geld moest uiterlijk 1 oktober 1921 worden terugbetaald. Voor elk eventueel verkocht perceel voor deze datum moest Kok F. 8000 op het krediet aflossen. Er moesten particuliere eengezinswoningen komen, op een afstand van minstens zes meter van de openbare weg, terwijl als tuinafscheiding een ijzeren hek op stenen rollaag moest worden gebouwd. Nog een bepaling was dat 'eventueel houtgewas tusschen de op het verkochte te stichten huizen en den weg niet hooger mag zijn dan een en een vierde meter'. Voor de goedkoopte kregen de huizen geen zolders, maar een nepdak met fopgevels. Dat wil zeggen een plat dak met aan de voorkant voor een mooier aanzicht de suggestie van een dakopbouw. Het dossier kreeg van het gemeentebestuur van Schoten de naam project 'Raadhuislaan 4'.
Bouwtekening van de voorgevels aan het Raadhuisplein, en het nieuwe briefhoofd van een trotse Kok met tekening van het ontwerp. De architect is onbekend. Misschien Rutger van der Ploeg, met wie Kok kort samenwerkte.
Boven vooraanzicht gevels.
Links daaronder dwarsdoorsnede met nepdak.
Rechts het eerste plan waarvan de rechter twee
percelen niet doorgingen.
Detail eerste bouwplan 1921
Briefhoofd
20 08 1921
Plattegrond woning.
Let op de chic namen: vestibule,
salon, kabinet, en loodsje (schuur).
Detail eerste bouwplan 1921
Alles ging vlekkeloos*. Er waren maar twee problemen. Kok wilde een wijziging in het bouwplan: geen schuifdeuren met kasten op de eerste verdieping maar 'Brabants Werk' (lichte, niet-dragende scheidingswanden) waarin een deur met kast. Dit werd, omdat het al gedaan was voor de aanvraag, knarsetandend goedgekeurd. En Kok kreeg een proces- verbaal omdat hij zonder vergunning perceel nr. 22 in gebruik had genomen. 8 november 1921, een maand voor de vervaldatum van de lening van Bredius, kreeg Kok officieel toestemming voor in gebruik nemen van de nrs. 8 t/m 22. De woningen ('herenhuizen') gingen weg voor F. 12.000-. Kok verkocht in oktober 1921 vijf huizen, waaronder aan J.F. Haije.
12 oktober 1921 kocht Johan Frederik Haije, kantoorbediende, voor F. 12.000 Raadhuisplein nr. 12 van J.P.G. Kok, bouwkundige. Haije was F. 2000 schuldig aan de verkoper Kok, deze nam de schuldbekentenis aan met nader te melden hypotheekstelling en bedingingen. De hypotheek van F. 8000,- werd verleend door de heer Kardoes, bankdirecteur te Hilversum, als mondeling lasthebber van de heren mr. Tjabbes en Woltman jr. , directeuren van de N.V. Noord-Nederlandsche Hypotheekbank te Veendam. In beide gevallen was de borg het Raadhuisplein nr. 12. Het was niet omdat J.F. Haije familie was, dezelfde constructie van de lening van F. 2000- gebruikte Kok ook voor een andere koopster. En alle kopers kregen een hypotheek via Kardoes van de N.V. Noord-Nederlandsche Hypotheekbank (dit was de zusterbank van de Veendammer Hypotheekbank).
* vlekkeloos is niet helemaal waar. De al uitgewerkte (en goedgekeurde) bouwplannen die Kok nog vòòr het contract met Bredius indiende bij de gemeente telde 11 woningen. Twee kavels (huidige nr. 2) vielen af, want Bredius had ze al verkocht aan iemand anders. Bleven er 9 woningen over. Toen werd er een huis llnks (nu nr. 22) bijgetekend. De huizen moesten daarvoor allemaal 15 cm van de breedte inleveren. Nu waren er dus 10 woningen. Voor nr. 22, waar Kok zelf wilde gaan wonen, vroeg hij vergunning aan voor een garage met oprit naast het huis en tegelijkertijd voor een serre achter Raadhuisplein 24. De vergunningen werden verleend.
Raadhuisplein. Helemaal links
(met openstaande ramen) een stukje
van nr. 24 waar het gezin Kok in 1922 ging wonen.
1922
Het werd toch een heel
aardig pleintje met die fopgevels
aan weerzijden.
1928
Geheel des Kok's is dat er op 27 mei 1921 twee koopovereenkomsten waren met Bredius, allebei voor dezelfde 3 percelen bouwterrein. Het eerste deel was 7 aren 14 centiaren, met krediet hypotheek van Bredius (de eerste 10 woningen). Het tweede deel was iets groter; 8 aren 69 centiaren, en een hoger verkoop bedrag (F. 9559). Per 1 mei 1921 waren daarvan alle kosten voor Kok. De voorwaarden voor de te bouwen huizen waren hetzelfde als bij de eerste koop (particuliere eengezinswoningen, de afstand tot de weg en de tuinafscheiding). Nu met een hypotheek van de heer Kardoes, directeur van de N.V. Noord-Hollandsche Hypotheekbank te Amsterdam, groot F.30.000. Het moest na een jaar, dus 27 mei 1922, worden terugbetaald. De rente van in totaal 6% moest in gedeelten per drie maanden worden afgelost. De borg waren 4 woningen die op het perceel gebouwd zouden worden. Het ging om Raadhuisplein 24 en 26 en Middenweg 22 en 24. Het werden woningen met een echt dak en een zolder. De trap naar zolder werd na voortschrijdend inzicht verplaatst, zodat de twee slaapkamers een schuifdeur konden krijgen. Dat was weer een heel gedoe met een nieuwe aanvraag voor vergunning (werd goedgekeurd).
Verandering trap naar zolder.
Gold voor alle vier percelen.
1921
Gezien de granieten vestibule
moet dit gaan om de villa's.
Haarlem's Dagblad
18 03 1922
21 augustus 1921 werd, te Schoten, dochter Elisabeth (Bep) geboren.
Een goed loon voor die tijd.
Haarlem's Dagblad
07 09 1921
21 oktober 1921 vroeg Kok vergunning voor het bouwen van nog eens 10 woonhuizen, nu aan de oneven kant van het Raadhuisplein. 22 november
werd dit goedgekeurd, wel met verbod op het niet brandveilige 'Brabants Werk'. Kok had de grond gekocht van Bredius met eenzelfde regeling als voor de eerste 10 huizen aan het Raadhuisplein. Dit dossier kreeg de naam project 'Raadhuisplein 5'.
7 december 1921 gunde architect Dirk van Zetten de kersverse aannemer J.P. Kok de verbouwing van twee percelen in Haarlem. Het tweede perceel, aan de Kleine Houtweg, was Huize Veldlust waarvan twee herenhuizen moesten worden gemaakt. Van Zetten had het zeer goed en logisch ontworpen en in juni 1922 werden ze opgeleverd. In 1926 maakte van Zetten in opdracht van Kok het ontwerp voor de Nieuwe Gracht 11. Dat ontwerp zat helaas iets minder logisch in elkaar.
Haarlem's Dagblad
07 12 1921
1922
Het jaar 1922 was een en al activiteit. Niet alleen de bouwplannen van de gemeente Schoten, maar ook die van Kok namen in 1922 een grote vlucht.
J.P.G. Kok had een goudmijn aangeboord en hielp zijn familie aan banen (en huizen) zodat ze konden meeprofiteren.
Architect Rutger van der Ploeg werkte volgens deze advertentie samen met Kok. Het is onduidelijk waar de huizen vanaf F. 6000 onder architectuur van Van der Ploeg dan stonden. De herenhuizen aan het Raadhuisplein gingen voor heel wat meer geld weg, namelijk F.12.000.
Haarlem's Dagblad
03 02 1922
Voor de meeste nieuwe projecten werkte Kok vanaf nu samen met architect Hendrikus (Henk) Lamberts, waarover later meer.
Verslag vergadering gemeenteraad Schoten over de uitbreiding. De eerste noordelijke dwarsstraat van de Zaanenlaan kreeg de naam Fuhrhopstraat.
Raadslid Loerakker vroeg wat het toch voor heren waren, naar wie de straten vernoemd zouden worden. Het bleken oud-burgemeesters en de toenmalige burgemeester Fuhrhop te zijn...
Vergadering gemeenteraad
en de nieuwe staatnamen.
Nieuwe Haarlemsche
Courant 21 04 1922
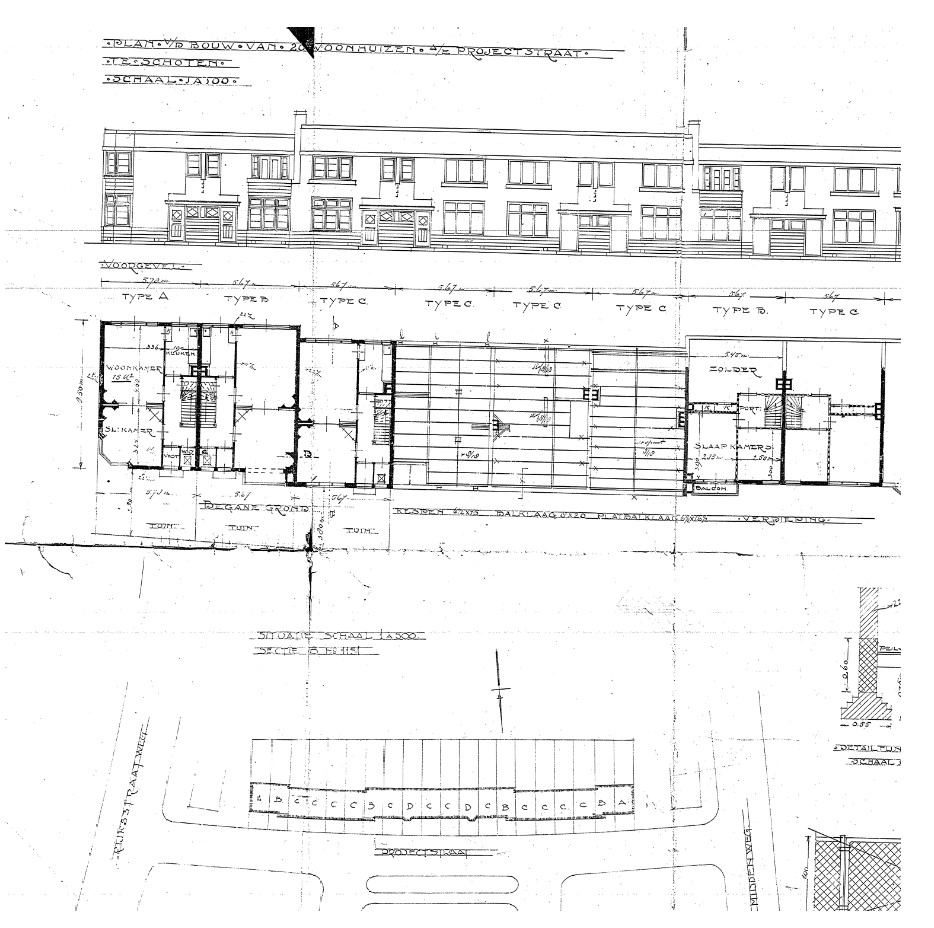
Er kwamen woningen aan de net bedachte Fuhropstraat. Kok had de grond op 9 maart 1922 gekocht van Bredius, voor F. 37.968 met een geldlening en hypotheek van Kardoes, directeur van N.V. Noord-Hollandsche Hypotheekbank van F. 100. 000, waarvan F. 50.000 ineens, voor de bouw van 20 woningen, binnen een jaar te voltooien. De woningen (oneven nummers) zouden komen aan de zuidkant . Er zijn wel bouwtekeningen maar geen bouwdossier van dit project.
Kok liet om te beginnen 20 huizen bouwen.
Nieuwe Haarlemsche
Courant 27 06 1922
Detail bouwtekeningen
eerste 20 woningen.
1922
De 'Tuin van Bredius'. Voor de een een verlies, voor de ander een mooie toekomst. De 'Tuin van Bredius' bestond ooit uit boomgaarden en velden vol aardbeien en bessen. Bredius begon rond 1920 met de verkoop van zijn grond aan particulieren. In 1923 verkocht hij wat nog over was van zijn uitgestrekte landerijen aan de gemeente Schoten. Op een piepklein stukje na, zodat hij en ook zijn zoon de titel Heer van Zaanen kon blijven voeren.
Waar de Fuhrhopstraat begint was vroeger het hek van de oprijlaan naar het Huis te Zaanen.
Nieuwe Haarlemsche
Courant 07 04 1922
Haarlem's Dagblad
11 11 1922
De portiers-tuinmanswoning naast het
hek van de oprijlaan van Huis te Zaanen.
Je ziet de oprukkende nieuwbouw.
1924
Oprijlaan Huis te Zaanen
Pasteltekening
van Elisabeth,
dochter van Bredius.
1 mei 1922 werd in de Nederlandsche staatscourant de oprichtingsakte van de N.V. Beleggingsmaatschappij 'Noord-Holland' te Amsterdam gepubliceerd. De bank werd opgericht door Kok en hij was ook enig directeur. Commissarissen waren Cornelis kok, bouwkundig opzichter, wonende te Amsterdam en J.J. Haije, administrateur, wonende te Schoten.
23 mei 1922 verkocht Kok voor zichzelf en privé Raadhuisplein nrs. 24 en 26 voor F. 28.000 aan de N.V. Beleggings Mij. Noord-Holland', waarvan hij directeur was. Hij bleek de twee huizen 4 juli 1921 te hebben gekocht. Er werd een hypotheek afgesloten voor F.19.000 met de heer Kardoes, als mondeling lasthebber van de heren Tjabbes en Woltman jr., directeuren van de Veendammer Hyptheekbank.
Kok en zijn gezin met twee jonge kinderen (geboren 1919 en 1921) verhuisden naar Raadhuisplein 24. Susanna was drie manden zwanger.
Haar broer J.J. Haije en zijn vrouw Anna Elisabeth Kok, de zus van J.P.G. Kok, gingen naast hen wonen op Raadhuisplein 26. Ze hadden ook drie jonge kinderen (geboren in 1915, 1917 en 1921).
12 juni 1922 kocht Kok grond van Bredius aan de noordzijde van de Fuhrhop-, de Arnoldy- en Haitsma Mulierstraat voor F. 62.400 met hypotheek van Kardoes, als mondeling gemachtigde van 1) de Veendammer Hypotheekbank en 2) de Noord-Nederlandsche Hypotheekbank, allebei voor F. 93.500.
Volgens de al bekende voorwaarden van Bredius (particuliere eengezinswoningen, de afstand tot de weg en de tuinafscheiding). Het ging om 61 woningen, waarvan nr.10 t/m 30 op de Fuhrhopstraat (Project 'Middenweg 42'). De voorwaarden waren overigens aangescherpt, Dit was niet zozeer tegen Kok gericht, meer voortschrijdend inzicht van Bredius. Hij deed tenslotte met meerder mensen zaken. In de te stichten gebouwen mochten nimmer 'danshuizen, drankhuizen, bordelen, fabrieken, trafieken, scholen, kerken, kloosters of andere inrichtingen welke gevaar, schade of hinder kunnen veroorzaken' gevestigd worden. Met een boete van F. 10.000 als de voorwaarden overtreden werden, te betalen aan Bredius of zijn erven. In één contract begon het rijtje met 'winkelhuizen'. En in minstens drie andere contracten stond 'geen winkehuis' apart vermeld, ook op straffe van een boete van F. 10.000 die uitbetaald moest worden aan...verkoper Kok! In september 1922 vroeg Kok om Fuhrhopstraat 16 te mogen veranderen in een winkelhuis. Dit was dan weer het enige contract waar het hele woord 'winkelhuis' niet in voorkwam. De bouwtekening werd goedgekeurd, met de opmerking van de gemeente dat de bouwpremie van het Rijk voor deze woning dan verviel.
Fuhrhopstraat 16 in het midden
van blok B (met kruisje).
'Project 'Middenweg 42'
Bouwtekening 1922
De 5 variaties.
'Project 'Middenweg 42'
Bouwtekening 1922
Gevels blok B.
'Project 'Middenweg 42'
Bouwtekening 1922
Er waren woningen in vijf variaties. Drie ervan hadden, terwijl het toch al niet zo groot was, ook nog een schuin dak. Daaronder Fuhrhopstraat nr. 16 (een huis 'type C'). Voor de verbouwing tot winkel werd de slaapkamer beneden opgeofferd en moest er in het schuine dak een extra raam worden gemaakt om de zolderruimte als slaapkamer te kunnen tellen.
De verandering van woonhuis in winkelhuis. Het is natuurlijk erg
dat de huizen zo klein waren dat begane grond was verdeeld
in woon- en slaapkamer.
Fuhrhopstraat 16 Bouwtekening 1922
Voor de volledigheid: ook de tuinafscheiding kwam in variaties. Tuinafscheidingen werden in die tijd speciaal ontworpen en hoorden bij het bouwplan. Veranderingen of weghalen zonder vergunning leidde tot veel ruzie met het gemeentebestuur.
Hoewel in het eerste contract met Bredius voor de woningen aan het Raadhuisplein de eis was dat er ijzeren hekken kwamen, welke eis in alle verdere contracten met Bredius standaard werd herhaald, werd daar in de praktijk, na het Raadhuisplein, vanaf geweken.
De tuinafscheidingen.
'Project 'Middenweg'
Bouwtekening 1922
Fuhrhopstraat
Ca. 1923
Fuhrhopstraat
Ca. 1924
In het Haarlem's Dagblad van 17 mei 1922 verschenen de toekomstplannen van Kok.
Plattegrond van de beoogde nieuwbouw langs de Floresstraat. 213 woningen naar plannen en voor rekening van bouwbureau Kok.
Het aantal was iets overdreven.
Haarlem's Dagblad
17 05 1922
Stap één van de
toekomstplannen.
Project 'Floresstraat 3'
Bouwtekening 1922
15 juni 1922 kocht Kok van de heer Arie Toth, makelaar te Schoten (we kennen hem al van het eerste contract met Bredius en het Raadhuisplein), nu in hoedanigheid van enig directeur van de N.V. Mij. tot Exploitatie en Administratie van Onroerende Goederen 'Schalkwijk', enige percelen bouwterrein te Schoten en wel aan het geprojecteerde Soendaplein ten westen, de Floresstraat ten noorden en de Lombokstraat ten oosten en aan de geprojecteerde Timorstraat ten westen, de Floresstraat ten zuiden en de Mentamistraat ten oosten. Dit waren ruwweg de toekomstplannen van Kok van de tekening uit het Haarlem's dagblad van 17 mei 1922. Het geheel kostte F. 67781, 50. Gelukkig was daar de heer Kardoes, directeur van de Noord- Hollandsche Hypotheekbank die klaarstond met een hypotheek van F. 70.000.
Kok kreeg op 18 juli 1922 de bouwvergunning voor de bouw van 35 woningen, waaronder 8 winkelwoningen, aan de Floresstraat, Mentawistraat, Ternate en Atjehstraat (project 'Floresstraat 3'). Omdat Kok zijn handen al vol had aan project 'Middenweg 42' en later dat jaar aan project 'Zaanenlaan', vroeg hij 28 februari 1923 een verlenging van de bouwvergunning aan. Hoewel de bouwvergunning feitelijk al was vervallen werd de vergunning met zes maanden verlengd.
24 juni 1922 had Kok weer een telefoonaansluiting (nog steeds vrij zeldzaam in die tijd).
Haarlem's Dagblad
24 06 1922
Haarlem's Dagblad
28 06 1922
Nieuwe advertenties:
Haarlem's Dagblad
02 08 1922
Woning- en
Bouwbureau J.P. Kok.
Haarlem's Dagblad
09 09 1922
Haarlem's Dagblad
25 09 1922
Villa's, Heerenhuizen
en Burgerwoonhuizen.
Haarlem's Dagblad
12 10 1922
11 september 1922 werd de oprichting van N.V. Bouwmaatschappij 'Castor', te Amsterdam, in de Nederlandsche staatscourant vermeld. Directeur J.F. Haije. Er waren geen commissarissen, beslissingen werden genomen in algemene vergaderingen met aandeelhouders. Een van de aandeelhouders was Kok.
21 september 1922 kwamen de eerste 20 huizen aan de Fuhrhopstraat op de markt. Ze gingen weg voor F.7500-. Een van de huizen werd verkocht aan broer Cornelis Kok. Cornelis woonden met zijn vrouw en dochtertje (1921) nog in Amsterdam. Het was ongeveer dezelfde constructie als met J.F. Haije in oktober 1921.
Cornelis Kok, opzichter, kocht voor F. 7500,- de Fuhrhopstraat nr. 11 van J.P.G. Kok, bouwkundige. De hypotheek van F. 4500,- werd verleend door de heer Kardoes, bankdirecteur te Hilversum, als mondeling lasthebber van de heren mr. Tjabbes en Woltman jr. , directeuren van de N.V. Veendammer Hypotheekbank te Veendam. Als borg heeft Cornelis niet alleen zijn net gekochte huis , maar ook spaarbrieven van de Nederlandsche Spaarbank te Groningen. Cornelis Kok was F. 1500 schuldig aan de verkoper Kok, deze nam de schuldbekentenis aan met nader te melden hypotheekstelling en bedingingen. Borg was weer de Fuhrhopstraat 11. Tenslotte leende J.P.G. Kok van de heer Kardoes, bankdirecteur te Hilversum, als mondeling lasthebber van de heren mr. Tjabbes en Woltman jr. , directeuren van de N.V. Veendammer Hypotheekbank te Veendam, F. 167.000- . Onderpand waren spaarbrieven van de Nederlandsche Spaarbank te Groningen en de grond met daarop te bouwen 27 herenhuizen, gelegen aan de Floresstraat te Schoten.
De laatste bladzijde van de eerste akte, alleen om de totaal verschillende handtekeningen van J.P.G. en C. Kok. De daadkrachtige handtekening van J.P.G. Kok is uit duizenden herkenbaar, maar de sierlijke handtekening van zijn broer mag er ook zijn.
Akte
21 09 1922
15 oktober 1922 geboorte te Schoten van zoon Jan.
2 november 1922 kocht Kok van Bredius voor F. 50.000, nog eens verschillende bouwterreinen. Kok zou zes dubbele villa's op een perceel aan de Zaanenlaan moeten bouwen en op de andere percelen bouwterrein, aan de Middenweg, Fuhrhopstraat en de Haitsma Mulierstraat, nog eens 27 eengezinswoningen. Voor ieder verkocht huis moest Kok een percentage afstaan aan Bredius (Voor een villa F. 2000 en een eengezinswoning
F. 1000), in ruil verleende Bredius dan royement voor die huizen. Het totaal geleende geld met rente van 6% moest uiterlijk juni 1923 zijn terugbetaald. Hypotheek van Kardoes, als directeur van de N.V. Noord-Hollandsche Hypotheekbank. Het ging om F.135.000, waarvan F. 55.000 ineens. Architect was H. Lamberts. De dubbele villa's kwamen in juni 1923 op de markt voor F. 13.000 (project 'Zaanenlaan').
Ontwerp van Architect Lamberts
voor de villa's.
Bouwtekening villa's 1922
De villa's op de Zaanenlaan
werden in juni 1923 opgeleverd, à
F. 13.000.
Algemeen Handelsblad
02 06 1923
Ondertussen was Kok ook begonnen met de villa op de hoek Rijksstraatweg 2 / Floresstraat 1. De adressen werden door elkaar gebruikt. Het dossier kreeg van het gemeentebestuur van Schoten de naam project 'Rijksstraatweg 2'. De architect is onbekend.
Met rood kruis de villa
hoek Rijksstraatweg 2
Floresstraat 1.
Project 'Floresstraat 3'
Bouwtekening 1922
Plattegrond villa.
Project 'Rijksstraatweg 2'
Bouwtekening 1922
De bouw van de villa had Kok al op 31 januari 1922 aangevraagd en stond los van project 'Floresstaat 3'. Het zou een onder- en bovenwoning worden. Beide verdiepingen hadden een badkamer, een enorme luxe in die tijd. Er kwamen twee voordeuren, aan de Rijksstraatweg en de Floresstraat maar de boven- en onderverdieping stonden met elkaar in verbinding. Misschien was het idee van Kok er weer met familie te gaan wonen. Maar er was ook meer kantoorruimte nodig voor het almaar uitbreidend imperium van bouwbedrijf Kok. Dan was de bouw van twee badkamers een raar idee. In ieder geval liet de nieuwe eigenaar, sigerenhandelaar van der Weele, in 1925 beide badkamers slopen.
In november 1922 kreeg Kok vergunning om een garage te bouwen achter Floresstraat 1. Dit was een echte garage met werkplaats en dakramen.
December 1922 werd Kok ook vergunning voor de bouw van een bergplaats achter de in aanbouw zijnde villa verleend.
Het valt ook op dat de grondprijs van
F.11- per m² die Bredius berekende goedkoop was.
Nieuwe Haarlemsche
Courant 03 11 1922
De garage, bergplaats en villa.
Project 'Rijksstraatweg 2'
Bouwtekening 1922, detail.
Het woningenbestand in november 1922. De eerst gebouwde huizen aan de Fuhrhopstraat gingen weg voor F. 7500-
Haarlem's Dagblad
04 11 1922
Dezelfde advertentie, nu met illustratie.
De Courant
07 11 1922
28 december 1922 vroeg Kok vergunning aan om vast 23 woningen aan de even kant van de Fuhrhopstraat in gebruik te mogen nemen (van project 'Middenweg 42'). Dit werd niet verleend omdat de woningen nog niet voltooid waren. Pas in augustus 1923 kreeg Kok een bewoonbaarheidsverklaring voor alle woningen.
Toch werd al op 22 januari 1923 door. J.P. Kok, bouwkundige, een huis verkocht aan zijn vader J.P. Kok Senior, winkelier. Het ging om de tot winkelhuis verbouwde Fuhrhopstraat nr. 16. De kosten waren F. 7500. Uiteraard met een hypotheek van F. 5500 van de Noord-Nederlandsche Hypotheekbank.
Dit klinkt als een zeer aardig gebaar van Kok, maar hij verkocht in januari 1923 nog vier andere huizen aan de even kant van de Fuhrhopstraat. Raar dat de gemeente, meestal erg scherp op dit soort dingen, het door de vingers zag. Misschien omdat de directeur van Gemeentewerken pas op 17 februari
1923 verdaging van de beslissing op de aanvraag van Kok vroeg en de verkopen er zo 'perongeluk' tussendoor glipten. De directeur van Gemeentewerken te Schoten, de heer J.C.C. Voorvelt, was sowieso vaak op de hand van Kok, tot woede van vooral wethouder H.J. Klein, lid van advies Gemeentewerken.
De laatste advertenties van het jaar 1922. In de eerste advertentie van het nieuwe jaar is het nu 'woningbureau Kok',
Nog steeds agent
Noord-Hollandsche
Hypotheekbank.
Haarlem's Dagblad
24 11 1922
Het huis Dr. Joh. Mezgerstraat 38 te Zandvoort werd geveild.
Nieuwe Haarlemsche
Courant 27 11 1922
Laatste advertentie
van het jaar.Kok is ook nog steeds makelaar.
Haarlem's Dagblad
24 11 1922
En de eerste
advertentie van
het nieuwe jaar.
Haarlem's Dagblad
27 01 1923
Het jaar 1922 was er één geweest van vele bouwprojecten. Kok begon zonder al te veel kennis maar het werd, ook dankzij architect Lamberts en de hulp van broer Cornelis en J.J.- en J.F. Haije toch allemaal best aardig. De hele familie Haije en broer Cornelis Kok woonde nu in Schoten. Het is mooi dat ook de ouders van Kok hun huis in Amsterdam verlieten voor een nieuwbouwhuisje van zoon Kok met voor-, achtertuin en schuurtje. Er is geen bewijs dat ze ooit daadwerkelijk een winkel begonnen zijn in Schoten. Jongste broer Petrus Kok, nu 20 jaar, woonde bij zijn ouders.
1923
31 januari 1923 werd de oprichtings akte van de N.V. Bouw- en Handelsmaatschppij 'Atilla', te Amsterdam, gepubliceerd in de Nederlandsche staatscourant no. 21. Directeur was J.F. Haije. Er waren geen commissarissen, beslissingen werden genomen in algemene vergaderingen met aandeelhouders. Enige aandeelhouders waren J.J. Woltman en J.P. G. Kok. Later Woltman en zijn dochter Arendine Hillechine (rechtszaak 11 juni 1928).
Over de lelijke bouw in Schoten, maar ook wat mooie projecten, met name het Raadhuisplein!
Haarlem's Dagblad
24 02 1923
In onderstaande advertentie verkocht Kok ook bouwterreinen voor winkelhuizen aan de Rijksstraatweg. Pikant gezien de problemen die hij zelf kreeg met een ontwerp voor een winkel op de verkeerde plek aan de Rijksstraatweg. De 'aardige villaatjes met rondom tuin' voor F. 10.000 aan de Zaanenlaan waren niet de dubbele villa's van project 'Zaanenlaan'. Deze kwamen pas in juni 1923 op de markt en moesten F.30.000 kosten.
De Telegraaf
11 02 1923
'Ontwerpen voor villa's
en andere perceelen.
Teekeningen gratis'
De Telegraaf
03 03 1923
Kok werkte sinds 1922 samen met architect Hendrikus Lamberts. Lamberts ontwierp een woonhuis, winkelwoning en een garage met bovenwoning en woonhuis op de hoek hoek Rijksstraatweg / Raadhuisplein. Zij werden begin 1924 opgeleverd. Deze woningen en het later in opdracht van Kok ontworpen GEKO- gebouw aan de Spaarndamseweg kregen veel lof van vakgenoten.
Hendrikus (Henk) Lamberts (1895 - 1973) werd geboren in Apeldoorn. Zijn vader, Mannus Lamberts, was succesvol aannemer van metselwerken. Henk werd architect en raakte sterk beïnvloed door de Amsterdamse school. 29 juni 1922 trouwde hij te Haarlem Clara Catharina Gijzen. Hij was 27, zij 25 jaar. Ze gingen wonen in Haarlem, maar vertrokken in juni 1923 naar Schoten (Schoten was een aparte gemeente en werd pas in 1927 geannexeerd door Haarlem). het nieuwe adres was Floresstraat 11, een paar huizen verder van het kantoor op de hoek Rijksstraatweg 2 / Floresstraat 1. In 1922 ontwierp Lamberts in Apeldoorn een vergadergebouw 'Kunst en Genot'. Zijn vader en de compagnon van zijn vader, de heer Wissink, waren de aannemers. Het gebouw bleef tot in de jaren 60 het bruisend middelpunt van het verenigingsleven in Apeldoorn. Helaas zijn er nauwelijks foto's van het gebouw zelf.
Nieuwe Apeldoornsche
Courant 15 09 1922
1973
Zwager J.J. Haije, al sinds maart 1922 administrateur van bouwbedrijf Kok, was verhuisd van het Raadhuisplein 26 naar de Fuhrhopstraat 18.
Dus ze gingen niet mee naar de villa op de Rijksstraatweg hoek Floresstraat.
Haarlem's Dagblad
03 03 1923
We horen ook weer eens wat van B.V. Beleggingsmaatschappij 'Noord-Holland'.
6 april 1923, in Hotel Royal te Haarlem, werd een proces verbaal opgemaakt van het verhandelde in een vergadering van aandeelhouders. De statuten van de beleggingsmaatschappij waren namelijk een dag daarvoor gewijzigd. Aanwezig waren: notaris J. Wildschut, J.P.G. en C. Kok, J.J. Woltman, mr. F.J. Tjabbes, J.W.P. Kardoes, P.B. ter Laag, J.J. Haije en C.J.A. Bredius, heer van Huis te Zaanen (!!). Het ging o.a. om het uitbreiden van het geplaatste kapitaal. J.J. Haije en C. Kok vroegen en kregen eervol ontslag als commissaris. De anderen werden herkozen, allen met algemene stemmen, behalve Bredius die maar net genoeg kreeg. Kardoes zat de vergadering voor, maar verwijderde zich met Woltman en Tjabbes zonder opgave van reden vòòr het sluiten van de acte (ze zullen de trein hebben moeten halen). Getuigen waren de oberkellner en kelner van Hotel Royal. De eigenaar van Hotel Royal, Antoon Meijer, was een goede vriend van Kok.
Het Centrum
21 04 1923
18 mei 1923 kocht J.F. Haije, als enig directeur van N.V. Bouwmij. 'Castor' vijf percelen bouwterrein van Bredius, voor F12. per m², samen F. 12.152,
met daarop te stichten een herenhuis en garage met bovenwoning aan het Raadhuisplein (huidige nummers 1R-1AR), en twee winkelhuizen aan de Rijksstraatweg (huidige nummers 19-21). Hypotheek à F. 50.000 van de N.V. Stichtsche Bankvereeniging te Utrecht. De hypotheek was inclusief een bouwterrein voor een garage met bovenwoning aan de Timorstraat, door de N.V. Beleggingsmij. 'Noord-Holland' overgedragen aan N.V. Bouwmij. 'Castor', waarvan de hypotheekgeefster vervolgens de grond in eigendom kreeg.
Ontwerptekening
van de panden door
H. Lamberts.
Beganegrond-plan
H. Lamberts.
De trotse eigenaar van een tabakszaak voor
zijn winkel Rijksstraatweg 21.
Vademecum der bouwvakkers
maart 1927
Raadhuisplein. In het midden
met torentje het Raadhuis.
Rechts nr. 1R, garage 'Herivaim' met benzinepomp en texaco oliën.
1925
Haarlem's Dagblad
04 06 1925
De bouw van deze panden was niet zonder slag of stoot gegaan. 26 juni 1923 werd er afwijzend beschikt over het ontwerp door B. en W. Er waren twee winkelhuizen bedacht aan de Rijksstraatweg wat niet in lijn was met de plannen van de gemeente. Het bouwen van winkels zou een verslechtering zijn van het welstandspeil op dit gedeelte. Daarom mocht een winkel alleen op een hoek geplaatst worden. Na veel gesteggel, verzoekschriften van Kok, en overleg, werd 7 augustus 1923 de bouw eindelijk goedgekeurd. Met dien verstande dat alleen het hoekhuis een winkelfunctie kreeg.
Een verzoek van de heer Lammersma, ook om een winkelhuis te mogen bouwen aan de Rijksstraatweg werd uiteindelijk afgekeurd. Een zelfde verzoek van de heer Schouten, nu ging het om twee winkelhuizen aan de Rijksstraatweg, werd ondanks de zeer fraaie ontwerptekeningen ook afgekeurd.
De redenatie van B. en W.
voor het afwijzen van
het verzoek van Lammersma.
Haarlem's Dagblad
15 06 1923
Terzelfder tijd wilde Kok van de gemeente een stuk grond kopen in de Schoterveenpolder. Er zouden arbeiderswoningen moeten komen, maar de Raad vreesde dat de woningen te duur verhuurd zouden worden. 9 juli trok Kok zijn verzoek tot aankoop in. Tot verdriet van sommige raadsleden, de gemeente kon het geld goed gebruiken. Wethouder Klein was verheugd dat de bedoelde grond dus beschikbaar bleef voor arbeiderswoningen.
Haarlem's Dagblad
29 06 1923
Haarlem's Dagblad
27 07 1923
27 augustus 1924 kreeg Kok de vergunning tot ingebruikneming. De huizen staan er nog steeds. Veel van het ontwerp is nog herkenbaar, maar van het winkelhuis is helaas de bakstenen gevel, inclusief de oranjerode tegels, donkergrijs geverfd.
Per 1 mei 1923 verhuisde Kok met gezin en kantoor naar het hoekhuis met als huisnummers Rijksstraatweg 2 / Floresstraat 1 (waar Kok eerder een garage achter had laten bouwen).
Het hoekpand. 19 februari 1925 verkocht door de B.V. Beleggings Mij. 'Noord-Holland'
aan sigarenhandelaar J. van der Weele à F. 25000. Commissarissen van de 'Noord-Holland'
waren in 1925: J.J. Woltman, mr. F.J. Tjabbes, J.W.P. Kardoes en P.B. ter Laag.
Directeur Kok. Foto's 1925
Niet alleen het bouwbedrijf werd meeverhuisd, maar ook alle N.V.'s. De Beleggingsmaatschappij Noord-Holland waarvan Kok directeur was
en de Bouw- en Handelsmaatschppij 'Atilla' en Bouwmaatschappij 'Castor'. Van deze beide maatschappijen was J.F. Haije directeur.
Nieuwe Haarlemsche
Courant 14 04 1923
De Telegraaf
04 05 1923
Kok noemt zich hier
'beëdigd makelaar'.
Haarlem's Dagblad
31 05 1923
Haarlem's Dagblad
31 05 1923
Er werd een dagmeisje gevraagd.
Haarlem's Dagblad
15 05 1923
Het bouwbureau en architect H. Lamberts zaten op kamer 3 van de Rijksstraatweg 2. Lamberts en zijn vrouw woonden sinds juni 1923 op Floresstraat 11.
Nieuwe Haarlemsche
Courant 16 05 1923
22 juni 1923 was weer een drukke dag voor Kok, Haije, Bredius, Kardoes, kandidaat-notaris ter Laag en notaris Johannes Wildschut.
- Kok verkocht als directeur van de N.V. Beleggingsmij, 'Noord-Holland' Raadhuisplein nr. 25 aan een drogist voor F. 11500 met hypotheek van de N.V. 'Noord Nederlandsche Hypotheekbank'.
- Bredius verkocht voor F. 24000 aan Antonie van Vliet, enig directeur van de N.V. Bouw- en Handelmij. 'Sfinx', bouwterrein (sectie B nr. 5230) voor de bouw van 5 woonhuizen aan de Middenweg en 3 woonhuizen aan de Zaanenlaan. N.V. Bouw en Handels Mij. 'Sfinx',was opgericht op 4 juni 1923 te Amsterdam. Het adres van de firma was op 22 juni 1923 Rijksstraatweg nr. 2. Crediet-hypotheek van Bredius F.45000.
- De heer van Vliet, als directeur van de N.V. Bouw- en Handelmij. 'Sfinx' leende nog eens F. 10000 van de N.V Bouwmj. 'Castor' met als onderpand weer hetzelfde stukje grond.
- Bredius verkocht voor F. 3200 aan J.F. Haije, enig directeur van de N.V. Bouw- en Handelmij. 'Atilla' een perceel bouwterrein aan de Zaanenlaan (sectie B nr. 5231) en een stukje van sectie B br. 5230 wat nog overgebleven was na de verkoop van Bredius aan 'Sfinx'.
- Kok verkocht als directeur van de N.V. Beleggingsmij, 'Noord-Holland' Fuhrhopstraat 2 aan een kleermaker voor F. 8250 met hypotheek van de N.V. 'Noord Nederlandsche Hypotheekbank' .
- Kok verleende als mondeling lasthebber van de heren Tjabbes en Woltman van de N.V. 'Noord Nederlandsche Hypotheekbank' en als zodanig de bank vertegenwoordigende, een hypotheek aan een boekhouder te Schoten.
N.V. Bouw- en Handelmij. 'Sfinx' liet het ontwerpen en uitvoeren van 5 woonhuizen aan de Middenweg en 3 woonhuizen aan de Zaanenlaan over aan architect Lamberts en bouwbedrijf Kok.
Middenlaan en Zaanenstraat,
Bouwtekening 1923, detail.
Tussen de vijf woonhuizen aan de Middenweg en de dubbele villa hoek Raadhuisplein, allemaal gerealiseerd door bouwbedrijf Kok, had Bredius in 1921 vier percelen bouwgrond verkocht aan de Amsterdamse firma Anderson en Henneman. Het ging om vier middenstandswoningen, huidige nrs. 26 - 32. Het ontwerp was zeer flamboyant (en kreeg goedkeuring van de gemeente), maar een maand later werden de bouwplannen gewijzigd door architect Boeyingen, conform de adviescommissie voor bouwontwerpen en uitbreidingsplannen in Noord-Holland. Het werd een strakke gevel, maar wel met een spannende horizontale rand van donkere stenen (nog steeds in vergane glorie te zien) . De huizen werden in oktober 1921 opgeleverd.
Ook architect Lamberts had een nieuw idee. De ontwerpen voor de Middenweg waren min of meer gelijk aan de Fuhrhopstraat maar de ingang en vestibule waren nu op zo'n manier ingedeeld dat er binnen een rare loze hoek ontstond.
Anderson en Henneman
Eerste ontwerp april 1921
Bouwtekening detail.
Anderson en Henneman
Tweede ontwerp mei 1921
Bouwtekening detail.
Bouwbedrijf Kok
Ontwerp voorgevels 1923
Bouwtekening detail.
Bouwbedrijf Kok
Plattegrond begane grond.
Bouwtekening detail.
Foto's van het huis Middenweg 38, waar de tijd lijkt te zijn stilgezet.
De buitendeur en de loze hoek binnen. Het klenie vierkante raampje in de deur is niet oorspronkelijk.
Foto's 2025
31 augustus 1923.Ter gelegenheid van de feesten rond de verjaardag van koningin Wilhelmina werd de villa op de Rijksstraatweg 2 versierd met gaslicht. Er werd hiervoor speciaal een nieuwe gasaansluiting aangelegd.
Nieuwe Haarlemsche
Courant 23 08 1923
Advertentie van de N.V. Beleggings Mij. 'Noord- Holland' met het huizenaanbod van dat moment.
Haarlem's Dagblad
15 09 1923
22 oktober 1923 werd te Amsterdam Handelsmaatschappij Geko N.V. opgericht. Directeur was Kok, begin 1924 Petrus kok en tot maart 1926 Cornelis Kok. Waarschijnlijk stond Geko voor GEbroeders KOk. 23 januari 1924 sloot hij aktes af voor Geko, als 'particulier, wonende te Schoten'. Petrus woonde nog bij zijn ouders. Notaris zoals altijd J. Wildschut. Enige aandeelhouders waren Woltman en J.P.G. Kok. Woltman schonk later zijn aandelen aan zijn zoon Johan Woltman. De zetel verhuisde 23 februari 1927 naar Kennemerplein 5 te Haarlem, mei 1929 naar Hilversum en augustus 1941 naar Den Haag. De handelmaatschappij bleef tot 1953 bestaan.
30 oktober 1923 richtten Kardoes en Kok tien bouwmaatschappijen op. De N.V.s Bouwmaatschappij 'Floresstraat', 'Rijksstraatweg', 'Raadhuisplein', Soendaplein', 'Overtonstraaat', 'Haitsma Mulierstraat', ''Timorstraat', 'Fuhrhopstraat', 'Middenweg', en 'Zaanenlaan'. Ieder met een kapitaal van
F. 10000 .
Haarlem's Dagblad
07 12 1923
Haarlem's Dagblad
28 12 1923
9 november 1923 sloten alle N.V.s een koopcontract en kregen daarna een hypotheek. Het was weer een uitzonderlijk ingewikkelde constructie. Notaris Wildschut had er deze dag 42 akten voor nodig.
Omdat geen van de net opgerichte N.V.'s al een directeur had werden een paar stromannen (allemaal bouwkundigen) ingezet als waarnemend directeur. De heer J.W. Roozen, bouwkundige te Haarlem, mocht zich zelfs waarnemend directeur van vier van de N.V.'s noemen. De eerste officiële Algemene Vergadering van alle N.V.'s, waar voor iedere N.V. een directeur benoemd zou worden, zou pas in mei 1924 zijn.
De verkoper was in alle gevallen de heer Theodor Klarenaar, industrieel, wonende te Dusseldorf. De percelen bouwgrond waren onderverdeeld in kleine stukken, elk goed voor maximaal 10 te bouwen eengezinswoningen. Alle hypotheken werden verleend door de Noord-Nederlandsche Hypotheekbank of de Veendammer Hypotheekbank. De heer Theodor Klarenaar was mede eigenaar van de N. V. Klarenaar, Braun en Co's handelmaatschappij (opgericht 8 september 1923 te Amsterdam). Deze N.V. verkocht later bouwgrond in Bloemendaal aan Kok. Ook met Haije deed Klarenaar in 1924 zaken, nu als directeur van de te Amsterdam gevestigde N.V. 'Nijburgh', maatschappij tot exploitatie onroerende goederen te Nederland. Dit ging weer om grote percelen bouwgrond in Schoten.
Om alles nog ingewikkelder te maken werd er 13 januari 1925 een akte van rectificatie opgesteld. Dit was omdat verschillende van de opgedeelde stukken bouwgrond onder de verkeerde maatschappij stonden. En ook omdat sommige maatschappijen waren opgegaan in andere maatschapijen.
Hieronder volgt een klein stukje uit de akte omdat het toch eigenlijk erg komisch was. Notaris was weer J. Wildschut. Theodor Klarenaar was niet overgekomen maar had mejuffrouw Wilhelmina Margrietha van Ommeren, kantoorbediende uit Haarlem, mondeling gemachtigd. Deze mejufffrouw was 29 december 1924, in een andere zaak, ook al mondeling gemachtigd door Kok, in zijn functie als directeur van de N.V. Beleggingsmij. 'Noord-Hollland'.
' dat bij acte verleden negen November negentienhonderd drie en twintig, overgeschreven dienzelfden dag in deel 1194 nommer 133 door den heer Klarenaar, voornoemd, is overgedragen aan de Naamlooze Vennootschap Bouwmaatschappij Overtonstraat te Haarlem het onroerend goed kadastraal omschreven als gemeente Schoten sectie B nommer 6020 en 6021, beide gedeeltelijk, terwijl als nadere aanduiding was vermeld, dat deze perceelen bekend stonden als zes perceelen gemerkt 6 E en vier perceelen gemerkt 15 C op de kaart dienzelfden dag onder de minuten van mij, notaris gedeponeerd.
dat echter niet bedoeld was het perceel 6020 zoodat ten name van de Bouwmaatschappij Overtonstraat niet moet worden gesteld mede - eigendom in het perceel gemeente schoten B 6628 terwijl de vier perceelen voormeld als 15 C, inderdaad bekend stonden op de kaart als twee perceelen 15 C, een perceel K 14 en een perceel K 15.'
In het begin van het jaar 1923 schreef Kok zich ook in voor grote bouwkundige projecten, ook in Utrecht. In geen van de aanbestedingen werd de opdracht hem gegund. Het ontwerp voor de Haarlemschen Kegelbond was misschien een inspiratie voor de bouw van Geko.
School.
Nieuwe Haarlemsche
Courant 22 02 1923
64 woningen.
Utrechtsche
courant
24 02 1923
Bondsgebouw
kegelbond.
Haarlem's Dagblad
01 03 1923
Bruggen en bijkomende werken Amsterdamse Poort.
Nieuwe Haarlemsche
Courant 19 03 1923
Het gebouw van de kegelbond is af.
Haarlem's Dagblad
19 10 1923
1924
Project 'Floresstraat 3', de bouw van de bouw van 35 woningen, waaronder 8 winkelwoningen, aan de Floresstraat, Mentawistraat, Ternate en Atjehstraat, was eindelijk op stoom. De eengezinswoningen kwamen weer in variaties. Dit ging vooral om de gevel, het plattegrond van de (kleine)
woningen was min of meer hetzelfde.
Let ook op het ontwerp
voor de tuinhekjes.
Bouwtekening juli 1922
22 januari 1924 vroeg Kok vergunning om de voortuinhekken voor de percelen Floresstraat 5, 7 en 9 te mogen weghalen en om een prijsopgave van de kosten, aan de gemeente te betalen, voor het bestrating van de voortuinen. Dit omdat hij nr. 3 wilde ombouwen tot een winkel en kapperssalon en nr. 5 tot winkel. In juni 1924 kreeg hij vergunning voor het weghalen van de hekken en de verbouwingen. Met als voorwaarde van de gemeente dat de hekken op nr. 11 en 13 ook weggehaald moesten worden. Kok had op eigen initiatief alvast betontegels gelegd, maar deze waren van inferieure kwaliteit en moesten door gemeentewerken vervangen worden. Zelfs directeur gemeentewerken Voorvelt was licht geirriteerd.
Op de ansichtkaart van de Floresstraat hieronder zie je links een banketbakkeri op nr. 7, en een kapper, herkenbaar aan de gestreepte kapperspaal, op nr. 9 (dus niet op nr. 5). Hiernaast, op nr. 11, woonde architect Lambers. Ook hij had dus zijn voortuintje moeten opofferen. In het volgende blok zie je de voortuinen met de gemetselde tuinhekjes.
Floresstraat1925
Op deze foto is het
ontwerp van architect Lamberts
nog goed te zien.
Floresstraat hoek Lombokstraat 1979.
23 januari 1924 werd broer Cornelis Kok officieel beëdigd als makelaar. J.P. G. Kok noemde zichzelf in 1923 in twee advertenties ook beëdigd makelaar (van zijn beëdiging is echter nergens melding gevonden in de kranten).
Haarlem's Dagblad
23 01 1924
Zoals we al weten was het gezin Kok, en het kantoor, in mei 1923 verhuisd naar hoek Rijksstraatweg 2 / Floresstraat 1.
1 februari 1924 schreven de burgemeester en Wethouders van Schoten een verontruste brief naar de directeur van gemeentewerken. Het pand was zonder vergunning inwendig verbouwd. Er werd verzocht om een onderzoek. Het bleek te gaan om twee loketten in de vestibule, ingang Floresstraat 1,
's nachts, zonder vergunning, aangebracht. Vooral de potloodaantekeningen zijn veelzeggend. Het was het zoveelste conflict tussen de directeur van Gemeentewerken Voorvelt en wethouder Klein over het gedrag van Kok.
Plattegrond villa. Zie de woedend
getekende kruisjes van wethouder
Klein in de muren van de vestibule
van de ingang Floresstraat.
Bouwtekening 1922
Behorend bij
bouwtekening.
Wethouder Klein
aan B. en W.
1 februari 1924
B. en W. aan
directeur
gemeentewerken.
6 februari 1924
Gemeentewerken
aan B. en W.
15 februari 1924
B. en W. aan
Kok.
De gewone zaken gingen hun gangetje. Maar het jaar 1924 stond vooral in het teken van twee grote projecten. In het begin van het jaar van het GEKO-gebouw, en in juni van het jaar van de "Film-fabriek Actueel'.
Het Geko-gebouw was een groot complex onder architectuur van Lamberts aan de Spaarndamseweg, hoek Floresstraat. Kok had al 24 juli 1923 de bouwvergunning verkregen. Het bestond uit een café- restaurant (nr. 35), met een biljartzaal en op de eerste verdieping een grote vergaderzaal (met podium) en een woning. Naast het café-restaurant een poort naar de garage achter en naast de poort nog vier woningen (nrs. 27-33). De garage had een werkplaats, showroom en een licentie voor de verkoop van Studebakers in Haarlem en Omstreken. Alle woningen en het café-restaurant hadden een grote tuin met schuurtje. Achter de garage waren twee tennisvelden. Oorspronkelijk was de aanvraag voor drie tennisvelden, maar een werd opgeofferd voor een garage. Aan de overkant van de straat kwam een aanlegsteiger aan het Spaarne. Officiële eigenaar van de grond was de Bouw-en Handelmaatschappij 'Atilla'. Directeur van de N.V. Geko, Cornelis Kok, ging met zijn gezin wonen op nr. 33. De huidige huisnummers zijn
Spaarndamseweg 406 - 414.
Tekening van het bouwplan.
Haarlem's Dagblad
09 01 1924
Tekening met precieze plek
van de garage.(De garage was op het laatste moment erbij bedacht.)
Bouwtekening 1924
Advertentie van de N.V. Beleggingsmaatschappij Noord-Holland.
De Telegraaf
19 03 1924
Het gezin Kok was blijkbaar al in april 1924 verhuisd naar de Bronsteeweg 32 in Heemstede. Gezien de twee advertenties die geplaatst werden voor een flink werkmeisje en een net meisje, zelfstandig kunnende werken. Voorwaarde was, zeer eigenaardig, dat ze katoenen japonnen droegen.
De kantoren bleven voorlopig op de Rijksstraatweg nr. 2.
Haarlem's Dagblad
04 04 1924
Haarlem's Dagblad
08 04 1924
De mensen werden alvast lekker gemaakt voor de opening van het Geko- gebouw en de garage:
Haarlem's Dagblad
12 04 1924
De bouw ging soepel. Alles werd goedgekeurd door de gemeente, behalve de dakramen van de garage die Kok van geribbeld Engels glas wilde hebben, die moesten gewoon van draadglas worden (wegens levensgevaar, 'een knaapje kan wellicht met een steen een dakraam breken en dan versplintert het'). Kok was zoals altijd zeer voortvarend, zoals een paar zure opmerkingen van wethouder Klein op aanvragen bewijzen. Zoals op de aanvraag voor het steigertje, wat overigens goedgekeurd werd, 'Kok is oudergewoonte reeds begonnen'. Overigens was directeur gemeentewerken Voorvelt tegen de dakramen van geribbeld glas, waarop Klein aantekende 'Waarom levensgevaar? Toelichten!'. De heren hielden elkaar scherp (en kok bouwde gewoon door).
Briefhoofd van N.V. Handel
Mij. "Geko". (Cornelis Kok)
Briefhoofd van J.P.G. Kok.
Het Geko gebouw. V.r.n.l. Het café- restaurant, onder de toren de hoofdingang, ramen van de billiardzaal, het poortje naar de garage achter, en de vier woonhuizen. Het is natuurlijk een zwart/wit foto, van net na de oplevering, maar het geheel had een vrolijk aanzicht, met de rode bakstenen en de oranje tegels.
Veel is verpest, maar
het is nog herkenbaar.
Google Earth 2024.
4 mei 1924 was de feestelijke officiële opening. Goede vriend Antoon Meijer sprak ook.
Beschrijving van de opening en het gebouw.
Het Bloemendaalsch Weekblad 10 05 1924
Beschrijving gebouw maar vooral de garage en de studebakers.
Nieuwe Haarlemsche
Courant 03 05 1924
Van de opening is een bioscoopfilmpje gemaakt, speciaal ter promotie van de studebakers. We zien de bloemstukken binnen gedragen worden, en Kok (waarschijnlijk J.P.G. maar misschien Cornelis) wat uitleggen. Op het einde een paar seconden van een vrouwelijke bestuurder van een studebaker.
Ze lijkt een beetje op de foto van Susanna Kok-Haije. De film is niet al te scherp, maar toch zeer de moeite waard.
Dankbetuiging.
Haarlem's Dagblad
05 05 1924
Nette Jongen gevraagd.
Haarlem's Dagblad
06 05 1924
Van 10 tot en met 18 mei was er een Studebaker-expositie in het Brongebouw in Haarlem.
Het Bloemendaalsch Weekblad 17 05 1924
Nieuwe Haarlemsche Courant 03 05 1924
Ook het café-restaurant was nu open. Cornelis Kok vroeg en kreeg een drankvergunning.
Nieuwe Haarlemsche
Courant 31 05 1924
Haarlem's Dagblad
14 05 1924
Ondertussen pleitte Kok voor het doortrekken van de elektrische tram naar oud-Schoten en het openen van een hulppostkantoor. Een jaar later was er nog steeds geen hulppostkantoor. Wel waren vast vijf gezinnen een huis uitgezet, maar het postbestuur vond op het laatste ogenblik het perceel te klein.
Nieuwe Haarlemsche
Courant 10 05 1924
Het adres ter ondertekening.
Haarlem's Dagblad
13 05 1924
Haarlem's Dagblad
07 07 1925
24 juni 1924 ruilde J.J. Woltman zijn automobiel, een Brennabor (open, zwart donkerblauw, 6 zitpl.) in voor een Studebaker (helaas geen specificaties). Groninger kentekens.nl
Maar dit was niet het enige prestige project waar Kok en architect Lamberts mee bezig waren. Kok kwam in contact met Alex Benno. Benno was acteur en later regisseur, producent en scenarioschrijver bij de Filmfabriek 'Hollandia'. Nadat 'Hollandia' in 1923 failliet was gegaan (en de Nederlandsche Credietbank meesleepte in haar val) werd Benno directeur van 'Duch Film Company', een voortzetting van 'Hollandia'. De filmfabriek of filmatelier (nu noemen we het filmstudio) was nog gevestigd in het oude gebouw van 'Hollandia' aan het Spaarne 57.
Na een paar maanden trad Benno af als directeur omdat het teveel van zijn tijd in beslag nam. Nu werd hij eigenaar van filmdistributeur Actueel Film. Net als de in april 1923 overleden directeur van filmfabriek Hollandia, Maurits Binger, dachten ook Benno en Kok groots. Het idee van Benno, om een filmatelier op te richten op het stuk grond achter de GEKO-garage, ook in bezit van Kok, viel dan ook in goede aarde. Om Kok en architect Lamberts een idee te geven van hoe een filmatelier eruitzag en functioneerde, had Benno hen meegenomen naar de Universum Film AG in Berlijn.
Haarlem's Dagblad
05 06 1924
Kunst en amusement
14 06 1924
Een ruwe schets van het filmatelier.
Haarlem's Dagblad
07 06 1924
Aanbesteding.
Nieuwe Haarlemsche
Courant 06 06 1924
Haarlem's Dagblad
17 06 1924
Laagste inschrijving F. 34,990.
De Telegraaf
18 06 1924
20 juni 1924 vroeg Kok de vergunning aan voor de bouw van de filmfabriek op het terrein tussen de Delistraat en de Spaarndammerweg. Dit terrein lag achter de GEKO-garage, waar eigenlijk de twee tennisvelden zouden komen. Architect Lamberts had, zoals het altijd ging, de uitgewerkte tekeningen meegestuurd. Maar dit keer was er wat raars. Zie de formulieren, waarin een paar dingen opvallen. Het belangrijkste natuurlijk de bevestiging van J.F. Haije (uit naam van Kok) van een telefoongesprek wat Kok had gevoerd met gemeentewerken. In dat gesprek, op 10 juli 1924, deelde Kok mee af te zien van het bouwen van de film-fabriek. Interessant zijn de potloodaantekeningen van o.a. wethouder Klein. Bij de aanvraag staat 'Houd dit in de gaten' en bij de brief van gemeentewerken aan B. en W. met de terugtrekking staat 'gelukkig!'. Verder noemde Kok het bouwproject raar genoeg een 'tijdelijk bouwen van een filmatelier met fabriek'. Tenslotte raamde hij de kosten lager dan de uitkomst van de aanbesteding (F. 34.000 tegen F. 34, 990).
Wat de beweegredenen voor de terugtrekking van de bouwaanvraag ook waren, het leven ging door.
Alex Benno was alweer reuze druk met zijn nieuwe film 'Mooi Juultje van Volendam' met in de hoofdrol Annie Bos. De binnenopnamen werden in de filmfabriek Belga in Brussel gemaakt, de buitenopnamen op locatie. De film kwam in november uit.
Hilarisch verslag
van de filmopnamen.
Haarlem's Dagblad
27 06 1924
De Telegraaf
11 10 1924
Van de GEKO-garage met de Studebakers werd na juni 1924 niets meer vernomen. De licencie voor de verkoop van Studebakers was aan het einde van het jaar overgenomen door een andere garage. Ook deze garage hield in december 1924 een Studebaker Show in het Brongebouw...
Advertentie voor het restaurant en de garage.
Haarlem's Dagblad
07 06 1924
Laatste advertentie.
Nieuwe Haarlemsche
Courant 21 06 1924
Haarlem's Dagblad
13 12 1924
2 juli 1924 werd J.J. Haije beëdigd als makelaar in vaste goederen.
Nieuwe Haarlemsche
Courant 04 07 1924
Het restaurant en de verhuur van zalen van Geko liep goed. Ook handelde Cornelis Kok nu af en toe zelfstandig in huizen.
Haarlem's Dagblad
23 08 1924
9 september 1924 vroeg Kok een vergunning aan voor de bouw van een roggebroodbakkerij, op dezelfde plek als de beoogde filmfabriek. De bakkerij was natuurlijk stukken kleiner en eenvoudiger. De aanvraag werd goedgekeurd. Architect Lamberts maakte weer de bouwtekeningen. De bakkerij kreeg als nieuw huisnummer Spaarndammerweg 25-27. De toekomstige eigenaar van de bakkerij, de heer Ijzerman, moest nog heel wat veranderen aan de bouwplannen om het een goed werkende bakkerij te maken.
Tekening met precieze plek
van de bakkerij.
Architect Lamberts 1924
Nieuwe Haarlemsche
Courant 17 01 1925
Het was de rechterkant van een twee- onder- een- kap villa. Aan het huis was een garage aangebouwd. Kok vroeg vergunning om de garage te mogen veranderen in kantoren. Er kwam nu een aparte ingang voor de kantoren, maar misschien bleef de garage ook bestaan, Kok was immers een groot liefhebber van mooie auto's.
Bronsteeweg 32.
Google streetview 2015
Cornelis Kok en zijn gezin verhuisde ergens na 23 augustus 1924 van de woning naast het GEKO-gebouw naar de Rijksstraatweg 86 M.
Architect Hendrikus (Henk) Lamberts maakte turbulente tijden door. Zijn vader, Mannus Lamberts, succesvol aannemer van metselwerken, veilde in september 1924 huis en haard in Apeldoorn en trok met zijn vrouw in bij hun zoon en schoondochter op de Floresstraat 11 te Schoten.
Het ging om het huis met erf en feestgebouw 'Kunst en Genot', wat hun zoon Henk Lamberts in 1922 ontworpen had en was gebouwd door
Mannus Lamberts en zijn compagnon E.J. Wissink. Eind december 1922 had een grote brand hun timmermanswerkplaatst volledig in de as gelegd. Toch slaagde ze erin 3 maanden later in een groot project te realiseren, het Hotel-Café Ruimzicht te Apeldoorn.
Nieuwe
Apeldoornsche courant
12 12 1922
Nieuwe
Apeldoornsche courant
27 03 1923
Hotel Café
restaurant
'Ruimzicht'
Ca. 1930
Nieuwe
Apeldoornsche courant
05 09 1924
Nieuwe
Apeldoornsche courant
26 11 1924
Kok was nog steeds actief op veilingen en bovendien in 1924 vaak als 'deskundige' aanwezig bij veilingen van huizen door notaris Wildschut in Algemeen Verkooplokaal Nieuwe Gracht 74. Een paar voorbeelden:
Den Haag.
De Maasbode
09 04 1924
Algemeen Verkooplokaal
Nieuwe Gracht.
Nieuwe Haarlemsche
Courant 03 05 1924
Amsterdam.
De Telegraaf
06 05 1924
Baarn.
De Gooi-en Eemlander
23 08 1924
Schoten.
Haarlem's Dagblad
30 12 1924
29 december 1924 werd de akte van oprichting van de Bouw-en Handelsmaatschappij 'Pericles', te Amsterdam, afgedrukt in de Nederlandsche staatscourant. Eerste directeur was A.van Tooren, makelaar. 26 januari 1925 werd hij vervangen door J.C. Suerink, bouwkundige. Mei 1925 was Lamberts naast Suerink mede-directeur.
Eind 1924 werd Woningbureau en Makelaarskantoor 'HAKO' opgericht. Dit was van J.F. Haije. Hij en zijn gezin woonden nog steeds op het Raadhuisplein 12. Wanneer Geko voor GEbroeders KOk stond, was Hako misschien HAijeKOk. Partner was namelijk Petrus Kok. Er is geen oprichtingsakte akte, of wat voor akte dan ook, gevonden van Woningbureau en Makelaarskantoor 'HAKO'.
Haarlem's Dagblad
09 01 1925
Om het verhaal niet nodeloos ingewikkeld te maken, dat deden de heren zelf wel, laten we de oprichting in november 1923 van de N.V. BouwMij. 'Algemeen Nederlandsch Grondbezit', met als directeur ene Reynhout, bouwkundige uit Amsterdam, maar in 1924 met directeur F.J. Haije (deze N.V. verkocht in mei 1924 15 percelen bouwterrein van de heer W. van Schie) en de rondedans van directeuren en commissarissen (altijd met Kok, soms met C. Kok en altijd met F.J . Haije en / of J.J. Haije ) van de diverse N.V. 's achterwege. Evenals de volstrekt onnavolgbare woning- en grondruil tussen de N.V. Bouwmij. 'Castor', 'Atilla' en de N.V. 'Leidsche Exploitatie Maatschappij van Onroerende Goederen' op 24 december 1924. Het ging dit keer om grote bedragen en hoge hypotheken. Architect J.G. van den Bel zou in Leiden gaan bouwen. Er is weinig bekend over dit
nieuwbouwproject. In juli 1925 plaatste Kok een advertentie voor de verkoop van bouwgrond voor F. 12 per m². November 1925 betaalden de N.V. Bouwmij 'Castor' en de N.V. 'Geko' de kosten van de aanleg van straten. 38 onafgewerkte huizen aan de Lijster- en Roodborststraat werden 27 december 1926 geveild (en gekocht door Kok en van den Bel). Voor de liefhebber: Lees hier de koop- en ruil akten.
Omdat het nieuwbouw project voorkwam in het verhoor van de rechtbank 15 juni 1928, toch maar even de enige gevonden berichten op een rij:
De Tijd
12 02 1924
Leidsch Dagblad
02 07 1925
Handelingen van de Raad
Leiden 10 11 1925
Leidsche Courant
27 12 1926
Luchtfoto uit 1925 van een gedeelte van Schoten. In het midden de kruising Rijksstraatweg / Zaanenlaan. In het blauw alle grote bouwprojecten van Kok tot en met het jaar 1924.






















































































































































